- いい部屋ネット
- 賃貸物件ライブラリー
- 岡山県
- 土田コーポ
過去にいい部屋ネットへ掲載された土田コーポの不動産情報と提携先の地図情報を元に生成した参考情報です。
情報更新日: 2026年4月2日
情報更新日: 2026年4月2日
募集物件あり%22%20fill%3D%22none%22%20stroke%3D%22%23707070%22%20stroke-width%3D%221%22%2F%3E%0A%20%20%20%20%3C%2FclipPath%3E%0A%20%20%3C%2Fdefs%3E%0A%20%20%3Cg%20id%3D%22icon_kirakira%22%20transform%3D%22translate(-13323%20-1820)%22%20clip-path%3D%22url(%23clip-path)%22%3E%0A%20%20%20%20%3Cg%20id%3D%22icon_kirakira-2%22%20data-name%3D%22icon_kirakira%22%20transform%3D%22translate(13322.664%201820.418)%22%3E%0A%20%20%20%20%20%20%3Cpath%20id%3D%22%E3%83%91%E3%82%B9_9789%22%20data-name%3D%22%E3%83%91%E3%82%B9%209789%22%20d%3D%22M7.288%2C3.081A6.5%2C6.5%2C0%2C0%2C1%2C5.851%2C0%2C6.5%2C6.5%2C0%2C0%2C1%2C4.416%2C3.081%2C6.509%2C6.509%2C0%2C0%2C1%2C1.335%2C4.515%2C6.5%2C6.5%2C0%2C0%2C1%2C4.416%2C5.949%2C6.505%2C6.505%2C0%2C0%2C1%2C5.851%2C9.03%2C6.5%2C6.5%2C0%2C0%2C1%2C7.285%2C5.949a6.507%2C6.507%2C0%2C0%2C1%2C3.081-1.434A6.5%2C6.5%2C0%2C0%2C1%2C7.288%2C3.081Z%22%20transform%3D%22translate(0)%22%20fill%3D%22%23ffe36e%22%2F%3E%0A%20%20%20%20%20%20%3Cpath%20id%3D%22%E3%83%91%E3%82%B9_9790%22%20data-name%3D%22%E3%83%91%E3%82%B9%209790%22%20d%3D%22M14.493%2C13.013a4.1%2C4.1%2C0%2C0%2C1-.905-1.94%2C3.132%2C3.132%2C0%2C0%2C1-2.845%2C2.846%2C3.133%2C3.133%2C0%2C0%2C1%2C2.846%2C2.845%2C3.132%2C3.132%2C0%2C0%2C1%2C2.845-2.846A4.1%2C4.1%2C0%2C0%2C1%2C14.493%2C13.013Z%22%20transform%3D%22translate(-3.058%20-3.599)%22%20fill%3D%22%23ffe36e%22%2F%3E%0A%20%20%20%20%3C%2Fg%3E%0A%20%20%3C%2Fg%3E%0A%3C%2Fsvg%3E%0A)
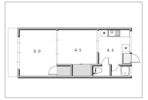
土田コーポ(岡山県岡山市中区土田)の物件情報


物件概要
築年月
1976年1月 (築50年)
種別
アパート
構造
鉄骨
階建
2階建
共有部
駐輪場
建物の特徴
-
土田コーポは、岡山県岡山市中区土田にある2階建の賃貸アパートです。山陽本線 東岡山駅 徒歩15分の距離にあります。1976年1月に完工し、建物の構造は鉄骨です。
こちらの物件を見ている方におすすめの物件
土田コーポの周辺環境
1000m圏内の施設
1500m圏内の施設
※ 周辺環境は直線距離で表示しています。大東建託パートナーズ株式会社が地図情報の提供事業者から提供を受けた情報を、いい部屋ネット独自の方法で抽出し提供しており、物件に紐づくものではありません。※ 移転や閉鎖等により情報が最新ではない場合があります。周辺環境の情報を利用される際は、ご利用前に各施設に直接お問い合わせください。
岡山市中区の住みここちレビュー
総合評点:3.3
★★★★★
( アクセス:3.4 / 買い物:3.6 / グルメ:3.2 / 子育て:3.0 / 治安:3.5 )
※ 掲載している口コミは、「街の住みここちランキング」のアンケート調査に基づく個人の感想や意見であり、回答者の主観が含まれています。表示している評点は、収集したアンケート調査をもとに独自に集計した結果です。感じ方には個人差がありますので、住まい探しの参考の一つとしてご覧ください。
30代 / 女性
居住地周辺は静かで住みやすいが、少し離れればスーパーなど日常で必要なものは手に入る便利さに満足している。
60代 / 女性
近くにスーパー、コンビニ、ドラッグストアなどがあり、生活のしやすい環境であり、少し離れると緑の多い場所もあり、田んぼや畑が周りにあったりと、適度な田舎感があって良い。
50代 / 女性
治安の良さと買い物などの普段の生活の不便さがないところ。
40代 / 女性
程よく田舎だけど、スーパーやホームセンターはあり生活には困らない点
60代 / 女性
どこに行くにも程々の距離であり、交通手段もあるところ
岡山県岡山市の地域情報
市区名称
岡山市
市区名称 ふりがな(英語)
おかやまし (okayama)
市役所 住所
岡山市北区大供1-1-1
市役所 電話番号
086-803-1000
公式ホームページURL
プロフィール・沿革
岡山市は、人口減少・少子高齢社会が進展する中、多様で豊かな自然や、中四国のクロスポイントに位置する地理的優位性、医療・福祉・教育等の分野における厚みのある都市機能集積などの強みや特性を最大限にいかし、活力があふれ、市民が愛着と誇りを持ち、未来へ躍動する都市の実現に向け、さらなる発展と市民の満足度の向上をめざした都市づくりを進めています。
主な行事
烏城夏まつり うらじゃ 秋のおかやま桃太郎まつり&集え!岡山城 MOMOTAROH FANTASY 西大寺会陽 おかやまアーツフェスティバル 岡山さくらカーニバル 烏城灯源郷 京橋朝市 おかやまマラソン 岡山芸術交流 おかやま文学フェスティバル 岡山カレーフェスティバル
特産・名産物
白桃 マスカット ピオーネ メロン 岡山ばらずし さわら ママカリ 黄ニラ パクチー 千両なす きびだんご フルーツパフェ 烏城彫 撫川うちわ 備前焼 岡山カレー
人口総数
695,690人
ガス料金
(22m3/月)
岡山ガス株式会社 6,387円
水道料金
(口径22㎜:20m3/月)
岡山市 3,366円
下水道料金
(20m3/月)
岡山市 3,011円
都市公園数
467
図書館数
10
子育て関連の独自の取り組み
(1)心豊かな岡山っ子応援団で、出生児とその保護者に絵本を提供する事業を実施。(2)子育て情報のポータルサイト「こそだてぽけっと」を運用。(3)「外遊び」を通して、子どもの心を豊かに、親世代や地域住民に対して「子育てにおける外遊びの重要性」を伝え、子どもが安心して健全に育つ地域環境の整備のために、「プレーパーク普及事業」を実施。(4)シルバー人材センターと連携し、産前産後の家庭へ、家事・育児支援を行う支援者を派遣する事業を実施。(5)「おかやまし子育てアプリ」を導入し、妊娠中や子育て中の市民に対してイベント、お知らせをプッシュ型で配信する事業を実施。
乳幼児医療費助成
(通院)
(通院)
対象年齢: 18歳3月末まで
自己負担: 自己負担あり
所得制限: 所得制限なし
乳幼児医療費助成
(入院)
(入院)
対象年齢: 18歳3月末まで
自己負担: 自己負担なし
所得制限: 所得制限なし
出産祝い
なし
一般病院総数
50所
公立保育所数
27所
0歳児保育を実施している公立保育所
27所
私立保育所数
55所
0歳児保育を実施している私立保育所
55所
公立幼稚園数(国立を含む)
36園
私立幼稚園数
13園
小学校数
92校
中学校数
45校
※調査後の制度改変、数値変更等により実際と異なる場合があります。最新情報は各市区役所へお問合せください。
- いい部屋ネット
- 賃貸物件ライブラリー
- 岡山県
- 土田コーポ