に物件情報が更新されました
即入居可
敷金礼金ゼロ
ビレッジハウス下五井4号棟の賃貸マンション【2階/0204号室】
敷金・礼金
0
円物件
4.73万円
(管理費 0円)
敷金
0円
礼金
0円
敷引・償却金
0円
種別
マンション
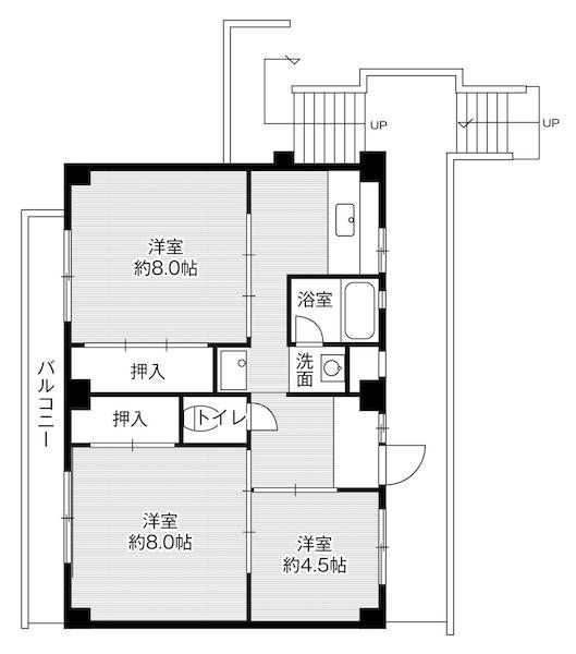
間取り
3DK
広さ
57.96m2
築年数
築57年
階数
2階 / 4階建
住所
愛知県豊橋市下五井町天王
交通
飯田線 下地駅 徒歩14分 (1.12km)
飯田線 小坂井駅 徒歩29分 (2.31km)
飯田線 小坂井駅 徒歩29分 (2.31km)
この物件について
お部屋探しは大東建託直営店のいい部屋ネット店舗に是非お越しくださいませ。初期費用のクレジット決済、現地案内等お客様のさまざまなご要望にお応えいたします。
この物件への
お問い合わせはこちら!
お問い合わせはこちら!
無料
敷金礼金ゼロ
ビレッジハウス下五井4号棟 0204号室
4.73万円 (管理費 0円)
- 敷0円
- 礼0円
3DK / 57.96m2 / 2階(4階建)
部屋の特徴
バス・トイレ別
2階以上
駐車場あり
室内洗濯機置場
エアコン付き
ペット相談可
オートロック
洗面所独立
バス・トイレ
バス・トイレ別、浴室、トイレ
キッチン
室内設備
バルコニー、洗面所独立、都市ガス、給湯、インターネット接続可、室内洗濯機置場
部屋の特徴
2階以上
共用部
建物の特徴
駐車場
有 月3,300円(税込)
入居条件
礼金0、学生相談、二人可、普通賃貸借契約 (契約期間:2年)
その他の特徴
IT重説対応物件、オンライン相談可
360°パノラマ
お部屋をグルッと
いつでも見学!
空室確認や見学したいなどお気軽にお問い合わせください!
この物件への
お問い合わせはこちら!
お問い合わせはこちら!
無料
敷金礼金ゼロ
ビレッジハウス下五井4号棟 0204号室
4.73万円 (管理費 0円)
- 敷0円
- 礼0円
3DK / 57.96m2 / 2階(4階建)
同じ建物で掲載中の物件(全2件)
階数/部屋番号
家賃(管理費)
敷金・礼金
間取り/広さ
向き
入居可能時期
閲覧中
2階 / 0204号室
4.73万円(管理費 0円)
敷
0円礼
0円3DK / 57.96m2 / 即入居可
2階 / 0204
4.73万円(管理費 0円)
敷
0円礼
0円3DK / 57.96m2
南
即入居可
閲覧中
周辺の環境
1000m圏内の施設
1500m圏内の施設
※ 周辺環境は直線距離で表示しています。大東建託パートナーズ株式会社が地図情報の提供事業者から提供を受けた情報を、いい部屋ネット独自の方法で抽出し提供しており、物件に紐づくものではありません。※ 移転や閉鎖等により情報が最新ではない場合があります。周辺環境の情報を利用される際は、ご利用前に各施設に直接お問い合わせください。
詳しい周辺環境は地図でチェック!
駅やお店など周辺環境を地図でチェック!
この物件への
お問い合わせはこちら!
お問い合わせはこちら!
無料
敷金礼金ゼロ
ビレッジハウス下五井4号棟 0204号室
4.73万円 (管理費 0円)
- 敷0円
- 礼0円
3DK / 57.96m2 / 2階(4階建)
契約条件など
取引態様
仲介
入居可能日
即入居可
保険
要
特記事項
・退去時クリーニング費用:70,131円
備考
短期解約違約金あり 1年未満解約は賃料等の3ヵ月分、2年未満は2ヵ月分 法人契約の場合、賃料等の契約条件が異なる場合あり 審査結果により敷金や連帯保証人を必要とする場合あり オプション設備は、種類に応じて追加料金を賃料に加算 お部屋の仕様により設置できない場合あり 敷金・礼金・更新料・鍵交換手数料0円 契約内容や審査の結果、敷金をお預かりする場合がございます。
情報更新日
-
次回情報更新日
情報更新日より15日以内
店舗情報

会社名
大東建託リーシング株式会社
問い合わせ先
0800-100-6430(通話料無料)
営業時間 / 定休日
10:00〜12:30 13:30〜18:00/火曜日・水曜日 : 夏季/冬季休暇有り
4月9日(木)定休日 4月23日(木)午後より営業となります
免許番号
国土交通大臣(2)第9120号
所属団体
(公社)首都圏不動産公正取引協議会 / (公財)日本賃貸住宅管理協会 / (一社)全国住宅産業協会 / (一社)関西住宅産業協会 / (公社)愛知県宅地建物取引業協会
空室確認や見学したいなどお気軽にお問い合わせください!
照会No.: 335-5643474
物件ライブラリー:
ビレッジハウス下五井4号棟※実際の連絡・案内・契約等については、各地域の協力仲介会社での対応となる場合がございますのでご了承の上お問合せください。(協力会社一覧はこちら)
※成約の際は、当社・協力仲介会社のいずれの場合でも仲介手数料が必要となります。
こちらの物件を見ている方におすすめの物件
5.08万円(管理費 0円)
敷
0円礼
0円3DK / 57.96m2 / 築59年
2階(0201号室) / 4階建
愛知県豊橋市横須賀町林
即入居可
敷金礼金ゼロ
パノラマ
4.1万円(管理費 2,000円)
敷
0円礼
0円3DK / 58.63m2 / 築39年
2階(201号室) / 2階建
愛知県豊橋市三ツ相町
即入居可
敷金礼金ゼロ
パノラマ
5.3万円(管理費 2,000円)
敷
2ヶ月礼
0円3DK / 58.89m2 / 築39年
3階 / 3階建
愛知県豊橋市弥生町字松原
4.9万円(管理費 5,000円)
敷
1ヶ月礼
0円3DK / 53.83m2 / 築52年
3階(305号室) / 3階建
愛知県豊橋市牛川通5丁目
即入居可
ペット可
パノラマ
6.0万円(管理費 3,000円)
敷
3ヶ月礼
0円3DK / 58.61m2 / 築38年
3階 / 4階建
愛知県豊橋市南瓦町
ペット可
5.2万円(管理費 4,000円)
敷
0円礼
0円2LDK / 58.0m2 / 築45年
2階(203号室) / 6階建
愛知県豊橋市東脇1丁目
即入居可
敷金礼金ゼロ
パノラマ
4.0万円(管理費 3,000円)
敷
90,000円礼
1ヶ月3DK / 57.16m2 / 築45年
2階 / 3階建
愛知県豊川市国府町茶ノ休
パノラマ
新 着
3.9万円(管理費 3,000円)
敷
0円礼
0円3DK / 58.32m2 / 築38年
3階(302号室) / 3階建
愛知県豊川市御津町御馬長床
即入居可
敷金礼金ゼロ
パノラマ
5.0万円(管理費 2,000円)
敷
1ヶ月礼
50,000円3DK / 56.6m2 / 築40年
2階(202号室) / 2階建
愛知県豊川市大木新町通4丁目
即入居可
ペット可
パノラマ
新 着
5.3万円(管理費 3,000円)
敷
0円礼
1ヶ月3DK / 56.43m2 / 築38年
4階 / 4階建
愛知県豊川市山道町1丁目
ペット可
パノラマ
愛知県豊橋市の地域情報
市区名称
豊橋市
市区名称 ふりがな(英語)
とよはしし (toyohashi)
市役所 住所
豊橋市今橋町1
市役所 電話番号
0532-51-2111
公式ホームページURL
プロフィール・沿革
豊橋市は、1906年8月1日に全国で62番目の市として誕生しました。豊橋市の人口は約37万人、市域面積は262.00k㎡です。東は弓張山系を境に静岡県と接し、南は太平洋、西は三河湾に面しており、豊かな自然と温暖な気候に恵まれています。
主な行事
花祭 節分祭 鬼祭 管粥祭 うめ・さくら・つつじまつり 馬頭観音二の午祭 普門寺春季大祭 豊麻神社例祭 葵祭 豊橋凧揚げまつり 安海熊野社祭礼 御衣祭 花しょうぶまつり納涼まつり(夜店) 豊橋祇園祭 みなとフェスティバル 浅間祭 ほうろく灸 炎の祭典 羽田祭 二川八幡社祭礼 椙本八幡社例祭(綱火) 豊橋まつり 酉の市 二川宿本陣まつり「大名行列」 赤岩寺寺宝展 もみじまつり 真田祭 朝市
特産・名産物
なす 次郎柿 鶏卵 うずらの卵 大葉 メロン 豊橋ちくわ 菜めし田楽 五平餅 ハゼの佃煮 豊橋カレーうどん ゆたかおこし 豊橋筆 帆前掛け 刺し子 洋ラン
人口総数
366,089人
ガス料金
(22m3/月)
サーラエナジー株式会社 5,880円
水道料金
(口径22㎜:20m3/月)
豊橋市 2,519円
下水道料金
(20m3/月)
豊橋市 2,277円
豊橋市(特定環境保全公共下水道) 2,640円
都市公園数
420
図書館数
4
ハザード・防災マップ
子育て関連の独自の取り組み
豊橋市母子父子福祉手当(ひとり親家庭等の母・父または養育者へ、支給要件にあてはまる18歳以下[18歳に達した年度末まで]の児童を養育されている方に支給する。ただし所得制限あり。また受給期間制限あり[一定の要件に該当する場合は期間延長する場合あり])。
乳幼児医療費助成
(通院)
(通院)
対象年齢: 18歳3月末まで
自己負担: 自己負担なし
所得制限: 所得制限なし
乳幼児医療費助成
(入院)
(入院)
対象年齢: 18歳3月末まで
自己負担: 自己負担なし
所得制限: 所得制限なし
出産祝い
なし
一般病院総数
16所
公立保育所数
4所
0歳児保育を実施している公立保育所
4所
私立保育所数
37所
0歳児保育を実施している私立保育所
37所
公立幼稚園数(国立を含む)
0園
私立幼稚園数
19園
小学校数
52校
中学校数
23校
※調査後の制度改変、数値変更等により実際と異なる場合があります。最新情報は各市区役所へお問合せください。
この物件にお問い合わせする






















