- いい部屋ネット
- 東京都
- 練馬区
- 東武練馬駅
- ASTILE 練馬北町(アスティーレ練馬北町)
- 3階 1LDKの物件詳細
に物件情報が更新されました
新築
即入居可
ASTILE 練馬北町(アスティーレ練馬北町)の賃貸マンション【3階/304号室】
インターネット無料
13.6万円
(管理費 15,000円)
敷金
1ヶ月
礼金
0円
敷引・償却金
0円
種別
マンション
間取り
1LDK
広さ
34.96m2
築年数
新築
階数
3階 / 4階建
住所
東京都練馬区北町1丁目
交通
東武東上線 東武練馬駅 徒歩7分 (0.51km)
東武東上線 上板橋駅 徒歩17分 (1.31km)
有楽町線 平和台駅 徒歩20分 (1.52km)
東武東上線 上板橋駅 徒歩17分 (1.31km)
有楽町線 平和台駅 徒歩20分 (1.52km)
この物件について
東武練馬駅より徒歩7分。新築デザイナーズマンション。インターネット使用料無料。オートロック、TVインターホン、宅配BOXあるので非対面での受け取り可能。
この物件への
お問い合わせはこちら!
お問い合わせはこちら!
無料
ASTILE 練馬北町(アスティーレ練馬北町) 304号室
13.6万円 (管理費 15,000円)
- 敷1ヶ月
- 礼0円
1LDK / 34.96m2 / 3階(4階建)
部屋の特徴
バス・トイレ別
2階以上
駐車場あり
室内洗濯機置場
エアコン付き
ペット相談可
オートロック
洗面所独立
バス・トイレ
バス・トイレ別、浴室、シャワー、追い焚き、浴室乾燥、温水洗浄便座、トイレ、脱衣所、浴槽
キッチン
システムキッチン、IHクッキングヒーター
室内設備
エアコン、バルコニー、クローゼット、洗面化粧台、洗面所独立、都市ガス、給湯、室内物干し、インターネット接続可、インターネット無料、TV付インターホン、シューズボックス、室内洗濯機置場、フローリング、洗面所にドア、洗面台、収納
部屋の特徴
2階以上、角部屋、新築、全居室洋室、2面バルコニー
共用部
公営水道、オートロック、駐輪場、バイク置場、宅配ボックス
建物の特徴
デザイナーズ物件
駐車場
無
入居条件
礼金0、ピアノ不可、楽器等の使用不可、事務所利用不可、普通賃貸借契約 (契約期間:2年)
その他の特徴
IT重説対応物件、オンライン相談可
空室確認や見学したいなどお気軽にお問い合わせください!
この物件への
お問い合わせはこちら!
お問い合わせはこちら!
無料
ASTILE 練馬北町(アスティーレ練馬北町) 304号室
13.6万円 (管理費 15,000円)
- 敷1ヶ月
- 礼0円
1LDK / 34.96m2 / 3階(4階建)
基本情報
賃料
136,000円
15,000円
1ヶ月
0円
0円
136,000円
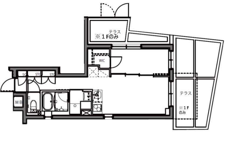
間取り / 専有面積
1LDK / 34.96m2
間取り詳細
LDK10.5, 洋4.3
種別 / 構造
マンション / 鉄筋コンクリート
築年 / 築年月
新築 / 2025年11月
所在階 / 階建
3階 / 4階建
駐車場
無
向き
南
住所
東京都練馬区北町1丁目
交通
同じ建物で掲載中の物件(全5件)
階数/部屋番号
家賃(管理費)
敷金・礼金
間取り/広さ
向き
入居可能時期
閲覧中
3階 / 304号室
13.6万円(管理費 15,000円)
敷
1ヶ月礼
0円1LDK / 34.96m2 / 即入居可
3階 / 304
13.6万円(管理費 15,000円)
敷
1ヶ月礼
0円1LDK / 34.96m2
南
即入居可
閲覧中
周辺の環境
500m圏内の施設
1000m圏内の施設
※ 周辺環境は直線距離で表示しています。大東建託パートナーズ株式会社が地図情報の提供事業者から提供を受けた情報を、いい部屋ネット独自の方法で抽出し提供しており、物件に紐づくものではありません。※ 移転や閉鎖等により情報が最新ではない場合があります。周辺環境の情報を利用される際は、ご利用前に各施設に直接お問い合わせください。
詳しい周辺環境は地図でチェック!
駅やお店など周辺環境を地図でチェック!
この物件への
お問い合わせはこちら!
お問い合わせはこちら!
無料
ASTILE 練馬北町(アスティーレ練馬北町) 304号室
13.6万円 (管理費 15,000円)
- 敷1ヶ月
- 礼0円
1LDK / 34.96m2 / 3階(4階建)
契約条件など
取引態様
仲介
入居可能日
即入居可
保険
要
特記事項
・保証人代行:必須 保証会社:その他 初回保証料:総賃料合計額の50% 更新保証料:10,000円(1年毎) 口座振替手数料:440円(毎月)
・バイク置場空有6600円 駐輪場空有330円
備考
短期解約違約金:1年未満解約時、賃料の1ヶ月分 インターネット無料 SOHOの場合は敷金2ヶ月 解約予告2か月前 ※仕様・図面・写真等に相違があった場合は現況を優先します。 ライフサポート24+:1100円
情報更新日
-
次回情報更新日
情報更新日より15日以内
店舗情報

会社名
大東建託リーシング株式会社
問い合わせ先
0800-100-5796(通話料無料)
営業時間 / 定休日
10:00〜12:30 13:30〜18:00/火曜日・水曜日 : 夏季/冬季休暇有り
5月14日(木)
免許番号
国土交通大臣(2)第9120号
所属団体
(公社)首都圏不動産公正取引協議会 / (公財)日本賃貸住宅管理協会 / (一社)全国住宅産業協会 / (一社)関西住宅産業協会

住所 :
東京都豊島区南池袋1丁目21番7号 イー・パートナーズ池袋駅前ビル8階
免許番号 :
国土交通大臣(2)第9120号
営業時間 :
10:00〜12:30 13:30〜18:00
定休日:
火曜日・水曜日 : 夏季/冬季休暇有り
第二木曜定休:5/14(木)・6/11(木)
お問い合わせ先:
0800-170-7743(通話料無料)
空室確認や見学したいなどお気軽にお問い合わせください!
照会No.: 306-5735015
物件ライブラリー:
ASTILE 練馬北町(アスティーレ練馬北町)※実際の連絡・案内・契約等については、各地域の協力仲介会社での対応となる場合がございますのでご了承の上お問合せください。(協力会社一覧はこちら)
※成約の際は、当社・協力仲介会社のいずれの場合でも仲介手数料が必要となります。
こちらの物件を見ている方におすすめの物件
13.1万円(管理費 15,000円)
敷
0円礼
0円1LDK / 33.93m2 / 築2年
3階 / 5階建
東京都板橋区若木1丁目
敷金礼金ゼロ
ペット可
パノラマ
11.9万円(管理費 7,000円)
敷
0円礼
1ヶ月1LDK / 36.55m2 / 築3年
1階 / 2階建
東京都練馬区北町2丁目
ネット無料
13.6万円(管理費 5,000円)
敷
0円礼
0.5ヶ月1LDK / 35.27m2 / 築3年
3階 / 3階建
東京都練馬区春日町5丁目
ネット無料
パノラマ
14.9万円(管理費 10,000円)
敷
0円礼
0円1LDK / 36.45m2 / 新築
4階(405号室) / 4階建
東京都板橋区赤塚4丁目
新築
敷金礼金ゼロ
ペット可
ネット無料
16.5万円(管理費 12,000円)
敷
0円礼
0円1LDK / 36.02m2 / 新築
3階(401号室) / 3階建・地下1階
東京都板橋区小茂根4丁目
新築
即入居可
敷金礼金ゼロ
ペット可
ネット無料
新 着
15.4万円(管理費 15,000円)
敷
1ヶ月礼
0円1LDK / 35.83m2 / 新築
3階(305号室) / 7階建
東京都板橋区高島平9丁目
新築
即入居可
ペット可
ネット無料
14.6万円(管理費 10,000円)
敷
146,000円礼
0円1LDK / 35.72m2 / 築3年
3階(307号室) / 8階建
東京都板橋区南常盤台1丁目
即入居可
ネット無料
パノラマ
14.1万円(管理費 10,000円)
敷
141,000円礼
141,000円1DK / 35.56m2 / 築5年
7階(702号室) / 8階建
東京都板橋区小豆沢1丁目
即入居可
ペット可
ネット無料
パノラマ
13.5万円(管理費 20,000円)
敷
1ヶ月礼
1ヶ月1LDK / 36.47m2 / 築1年
4階 / 8階建
東京都板橋区前野町2丁目
ペット可
14.9万円(管理費 10,000円)
敷
149,000円礼
149,000円1LDK / 34.88m2 / 築3年
8階 / 13階建
東京都板橋区本町
ペット可
ネット無料
パノラマ
東京都練馬区の地域情報
市区名称
練馬区
市区名称 ふりがな(英語)
ねりまく (nerima)
市役所 住所
練馬区豊玉北6-12-1
市役所 電話番号
03-3993-1111
公式ホームページURL
プロフィール・沿革
練馬区は、1947年8月1日に東京都の23番目の特別区として板橋区から分離独立し、農村から都市へと変貌を遂げてきました。みどり豊かな環境と都心に近い利便性が両立する、良好な住宅都市となっています。
主な行事
練馬まつり 照姫まつり 練馬こぶしハーフマラソン アニメプロジェクトin大泉 練馬こどもまつり 鶴の舞 酉の市 関のぼろ市 稚児行列 きたまち阿波おどり 中村橋阿波おどり 納涼灯篭流しの夕べ 練馬大根引っこ抜き競技大会 地区祭(17地区) みどりの風練馬薪能 真夏の音楽会 ねりまの森の音楽祭 ねりマルシェ 全国都市農業フェスティバル 練馬産業見本市
特産・名産物
キャベツ 練馬大根 金子ゴールデンビール麦 ねりコレ(ねりまのオススメ商品コレクション:昔みそ、練馬大根ドレッシングなど) ねりまワイン
人口総数
745,927人
ガス料金
(22m3/月)
東京瓦斯株式会社(東京地区等) 3,926円
水道料金
(口径22㎜:20m3/月)
東京都水道局 2,816円
下水道料金
(20m3/月)
東京都下水道局 2,068円
都市公園数
479
図書館数
13
子育て関連の独自の取り組み
(1)育児支援ヘルパー事業(2)産後ケア事業(3)子育てスタート応援券交付事業(4)第3子誕生祝金(5)母子保健オンライン相談(6)2ヶ月児相談(7)1歳児子育て相談(8)ねりますくすくアプリ(9)ねりま子育て応援アプリ(10)ねりま子育て応援ハンドブック(11)練馬こども園(12)外遊び型子育てのひろば事業(13)発達に不安がある親子を対象にしたひろば事業(14)練馬こどもカフェ(15)ねりまママパパてらす(16)障害児一時預かり事業。※区独自の制度のため事業名と制度名は同じ。
乳幼児医療費助成
(通院)
(通院)
対象年齢: 18歳3月末まで
自己負担: 自己負担なし
所得制限: 所得制限なし
乳幼児医療費助成
(入院)
(入院)
対象年齢: 18歳3月末まで
自己負担: 自己負担なし
所得制限: 所得制限なし
出産祝い
あり
出生記念苗木を配付。第3子以降の児童一人につき10万円の第3子誕生祝金を支給。
一般病院総数
17所
公立保育所数
59所
0歳児保育を実施している公立保育所
46所
私立保育所数
142所
0歳児保育を実施している私立保育所
137所
公立幼稚園数(国立を含む)
3園
私立幼稚園数
40園
小学校数
67校
中学校数
39校
※調査後の制度改変、数値変更等により実際と異なる場合があります。最新情報は各市区役所へお問合せください。
この物件に関連した条件で探す
- いい部屋ネット
- 東京都
- 練馬区
- 東武練馬駅
- ASTILE 練馬北町(アスティーレ練馬北町)
- 3階 1LDKの物件詳細
この物件にお問い合わせする














