16時間前に物件情報が更新されました
即入居可
妻沼貸家の賃貸一戸建て
カード決済可 ※初期費用のみ
更新料なし
8.0万円
(管理費 0円)
敷金
80,000円
礼金
0円
種別
一戸建て
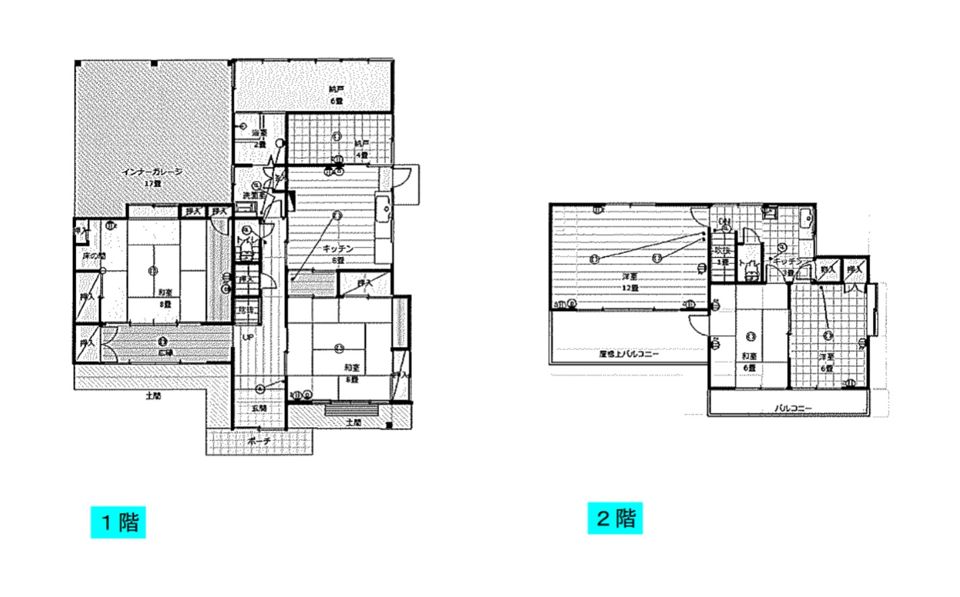
間取り
4DK
広さ
138.9m2
築年数
築42年
階数
2階建
住所
栃木県宇都宮市白沢町
交通
東北本線 宇都宮駅からバスにて30分 (関東バス)石割塚下車 徒歩5分 (0.4km)
この物件について
現地(近隣)待ち合わせやオンラインのご案内もできます!初期費用のクレジットカード払いOKです!戸建てタイプの4DK♪屋根付きの駐車場があります。各階にキッチン・トイレがあり、生活スペースが分けられます
この物件への
お問い合わせはこちら!
お問い合わせはこちら!
無料
妻沼貸家
8.0万円 (管理費 0円)
- 敷80,000円
- 礼0円
4DK / 138.9m2 / 2階建
部屋の特徴
バス・トイレ別
2階以上
駐車場あり
室内洗濯機置場
エアコン付き
ペット相談可
オートロック
洗面所独立
バス・トイレ
バス・トイレ別、浴室、追い焚き、温水洗浄便座、トイレ
キッチン
システムキッチン
室内設備
バルコニー、床下収納、洗面化粧台、洗面所独立、室内洗濯機置場、洗面台、収納
部屋の特徴
共用部
建物の特徴
駐車場
駐車場2台無料
有
入居条件
礼金0、普通賃貸借契約 (契約期間:2年)
その他の特徴
クレジットカード支払い可(初期費用のみ)、IT重説対応物件、オンライン相談可
360°パノラマ
お部屋をグルッと
いつでも見学!
空室確認や見学したいなどお気軽にお問い合わせください!
この物件への
お問い合わせはこちら!
お問い合わせはこちら!
無料
妻沼貸家
8.0万円 (管理費 0円)
- 敷80,000円
- 礼0円
4DK / 138.9m2 / 2階建
基本情報
賃料
80,000円
0円
80,000円
0円
0円
0円
間取り / 専有面積
4DK / 138.9m2
種別 / 構造
一戸建て / 木造
築年 / 築年月
築42年 / 1983年6月
所在階 / 階建
2階建
向き
南
住所
栃木県宇都宮市白沢町
交通
東北本線 宇都宮駅からバスにて30分 (関東バス)石割塚下車 徒歩5分 (0.4km)
周辺の環境
500m圏内の施設
1000m圏内の施設
※ 周辺環境は直線距離で表示しています。大東建託パートナーズ株式会社が地図情報の提供事業者から提供を受けた情報を、いい部屋ネット独自の方法で抽出し提供しており、物件に紐づくものではありません。※ 移転や閉鎖等により情報が最新ではない場合があります。周辺環境の情報を利用される際は、ご利用前に各施設に直接お問い合わせください。
詳しい周辺環境は地図でチェック!
駅やお店など周辺環境を地図でチェック!
この物件への
お問い合わせはこちら!
お問い合わせはこちら!
無料
妻沼貸家
8.0万円 (管理費 0円)
- 敷80,000円
- 礼0円
4DK / 138.9m2 / 2階建
契約条件など
取引態様
仲介
入居可能日
即入居可
保険
要
特記事項
・保証人代行:必須 保証会社:その他 月額賃料等合計×50%(初回) 月額賃料等合計×1%(毎月)
備考
安心ライフサポート:500円 更新手数料:11000円
情報更新日
2025年10月28日 (本日)
次回情報更新日
情報更新日より15日以内
店舗情報

会社名
大東建託リーシング株式会社
営業時間 / 定休日
10:00〜12:30 13:30〜18:00/火曜日・水曜日 : 夏季/冬季休暇有り
※11/21(金)休業いたします。
免許番号
国土交通大臣(2)第9120号
所属団体
(公社)首都圏不動産公正取引協議会 / (公財)日本賃貸住宅管理協会 / (一社)全国住宅産業協会 / (一社)関西住宅産業協会
こちらの物件を見ている方におすすめの物件
12.0万円(管理費 3,000円)
敷
2ヶ月礼
1.1ヶ月3LDK / 125.03m2 / 築23年
- 階 / 2階建
栃木県宇都宮市中岡本町
カード決済可
10.0万円(管理費 0円)
敷
1ヶ月礼
1ヶ月5DK / 118.0m2 / 築52年
- 階 / 2階建
栃木県宇都宮市元今泉1丁目
カード決済可
パノラマ
11.5万円(管理費 0円)
敷
2ヶ月礼
1ヶ月5LDK / 115.92m2 / 築37年
- 階 / 2階建
栃木県宇都宮市上戸祭町
即入居可
カード決済可
パノラマ
15.0万円(管理費 3,000円)
敷
1.5ヶ月礼
1.1ヶ月4LDK / 117.58m2 / 築12年
- 階 / 2階建
栃木県宇都宮市豊郷台3丁目
カード決済可
6.9万円(管理費 0円)
敷
1ヶ月礼
1ヶ月5SK / 112.35m2 / 築43年
- 階 / 2階建
栃木県宇都宮市鶴田町
カード決済可
4.7万円(管理費 4,000円)
敷
1ヶ月礼
0円3LDK / 76.62m2 / 築37年
2階 / 5階建
栃木県塩谷郡高根沢町光陽台1丁目
カード決済可
ネット無料
パノラマ
7.3万円(管理費 2,000円)
敷
0円礼
75,000円3LDK / 81.15m2 / 築44年
- 階 / 1階建
栃木県塩谷郡高根沢町光陽台2丁目
即入居可
カード決済可
栃木県宇都宮市の地域情報
市区名称
宇都宮市
市区名称 ふりがな(英語)
うつのみやし (utsunomiya)
市役所 住所
宇都宮市旭1-1-5
市役所 電話番号
028-632-2222
公式ホームページURL
プロフィール・沿革
宇都宮市は、1954年から1955年にかけて隣接1町10ヶ村を合併編入し、都市基盤の整備を進め、近代的な商工業都市としての基礎を整えました。1996年に市制100周年を迎えて中核市となり、さらに、2007年には隣接2町を合併し、北関東初の50万都市となりました。恵まれた立地条件や交通条件、各種都市機能の集積などにより、栃木県の政治・経済・文化の中心地であると同時に、これからも首都圏の北の拠点都市として発展を続けていきます。
主な行事
春渡祭 田舞祭 天王祭 菊水祭 冬渡祭 フェスタmy宇都宮 宇都宮カクテルカーニバル さつき&花フェア 3×3ワールドツアーマスターズ ふるさと宮まつり うつのみや花火大会 宇都宮カクテルナイト フェスタin大谷 ジャパンカップサイクルロードレース 宇都宮城址まつり 宇都宮餃子祭 ミヤジャズイン 宇都宮シクロクロス もったいないフェア うつのみや食育フェア 宇都宮市農林業祭 宇都宮ジャズクルージング 宇都宮城桜まつり 梵天祭り 宇都宮マラソン大会
特産・名産物
餃子 大谷石 ふくべ細工 黄ぶな 宇都宮牛 いちご 梨 トマト ニラ アスパラ 米 カクテル 玉ねぎ 春菊 里芋 しいたけ ねぎ ゆず
人口総数
515,831人
ガス料金
(22m3/月)
東京瓦斯株式会社(東京地区等) 3,926円
堀川産業株式会社(宇都宮南部地区) 5,235円
水道料金
(口径22㎜:20m3/月)
宇都宮市 3,278円
下水道料金
(20m3/月)
宇都宮市 2,695円
都市公園数
1,103
図書館数
5
子育て関連の独自の取り組み
(1)街中に子どもたちのあそび場として、「ゆうあいひろば」を設置。(2)市の子育て施策等に関する情報を集約し発信するホームページ「宮っこ子育て応援なび」を開設。(3)自立に困難を抱える青少年のための総合相談窓口の設置や様々な活動プログラムを提供する「若者自立支援ステップアップ事業」の実施。(4)青少年に同世代・異世代との交流の場、子育て家庭に子育ての楽しさを実感する場を提供する「宮っこフェスタ」を開催。(5)小学校4年生~6年生を対象に店舗や工場等で仕事の体験や見学ができる「宮っこトライ」を実施。(6)親の子育て負担の軽減や子どもの前向きな気持ちや生きる力を育むなど個々の状況に応じた支援をする「親と子どもの居場所」を設置。
乳幼児医療費助成
(通院)
(通院)
対象年齢: 18歳3月末まで
自己負担: 自己負担なし
所得制限: 所得制限なし
乳幼児医療費助成
(入院)
(入院)
対象年齢: 18歳3月末まで
自己負担: 自己負担なし
所得制限: 所得制限なし
出産祝い
あり
出生届提出時に「出生記念樹引換券」を贈呈。妊娠8ヶ月期面接を受けた妊婦に対して、「もうすぐ38っ子応援金」(3万円)を支給。
一般病院総数
27所
公立保育所数
9所
0歳児保育を実施している公立保育所
9所
私立保育所数
69所
0歳児保育を実施している私立保育所
69所
公立幼稚園数(国立を含む)
1園
私立幼稚園数
23園
小学校数
71校
中学校数
31校
※調査後の制度改変、数値変更等により実際と異なる場合があります。最新情報は各市区役所へお問合せください。
この物件の周辺駅から探す
この物件にお問い合わせする





















