に物件情報が更新されました
即入居可
古本貸家A棟の賃貸一戸建て
11.0万円
(管理費 0円)
敷金
3ヶ月
礼金
1ヶ月
敷引・償却金
0円
種別
一戸建て
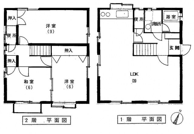
間取り
3LDK
広さ
92.74m2
築年数
築34年
階数
2階建
住所
広島県広島市東区戸坂大上4丁目
交通
芸備線 戸坂駅 徒歩24分 (1.9km)
山陽本線 広島駅からバスにて18分 第一病院前下車 徒歩5分 (0.35km)
山陽本線 広島駅からバスにて18分 第一病院前下車 徒歩5分 (0.35km)
この物件について
玄関先まで覗き穴を覗きに行かなくてもインターホン越しに誰が来たのかを確認できるので防犯対策につながります。収納はシューズボックス・押入など豊富なので、広々と空間を利用することも可能です。
この物件への
お問い合わせはこちら!
お問い合わせはこちら!
無料
古本貸家A棟
11.0万円 (管理費 0円)
- 敷3ヶ月
- 礼1ヶ月
3LDK / 92.74m2 / 2階建
部屋の特徴
バス・トイレ別
2階以上
駐車場あり
室内洗濯機置場
エアコン付き
ペット相談可
オートロック
洗面所独立
バス・トイレ
バス・トイレ別、浴室、トイレ、脱衣所
キッチン
室内設備
エアコン、洗面化粧台、洗面所独立、TV付インターホン、シューズボックス、押入、室内洗濯機置場、洗面台、収納
部屋の特徴
共用部
建物の特徴
駐車場
有
入居条件
普通賃貸借契約
その他の特徴
IT重説対応物件、オンライン内見可、オンライン相談可
360°パノラマ
お部屋をグルッと
いつでも見学!
空室確認や見学したいなどお気軽にお問い合わせください!
この物件への
お問い合わせはこちら!
お問い合わせはこちら!
無料
古本貸家A棟
11.0万円 (管理費 0円)
- 敷3ヶ月
- 礼1ヶ月
3LDK / 92.74m2 / 2階建
周辺の環境
500m圏内の施設
1000m圏内の施設
※ 周辺環境は直線距離で表示しています。大東建託パートナーズ株式会社が地図情報の提供事業者から提供を受けた情報を、いい部屋ネット独自の方法で抽出し提供しており、物件に紐づくものではありません。※ 移転や閉鎖等により情報が最新ではない場合があります。周辺環境の情報を利用される際は、ご利用前に各施設に直接お問い合わせください。
詳しい周辺環境は地図でチェック!
駅やお店など周辺環境を地図でチェック!
この物件への
お問い合わせはこちら!
お問い合わせはこちら!
無料
古本貸家A棟
11.0万円 (管理費 0円)
- 敷3ヶ月
- 礼1ヶ月
3LDK / 92.74m2 / 2階建
契約条件など
取引態様
仲介
入居可能日
即入居可
保険
要
特記事項
・保証人代行:必須 保証会社:その他 初回保証料月額賃料総額(家賃
・共益費
・駐車場等)の50% 年間13,000円
備考
更新事務手数料22,000円(2年)/
情報更新日
-
次回情報更新日
情報更新日より15日以内
店舗情報

会社名
大東建託リーシング株式会社
問い合わせ先
0800-100-9569(通話料無料)
営業時間 / 定休日
10:00〜12:30 13:30〜18:00/火曜日・水曜日 : 夏季/冬季休暇有り
GW休暇5/3~5/7・臨時休業5/14
免許番号
国土交通大臣(2)第9120号
所属団体
(公社)首都圏不動産公正取引協議会 / (公財)日本賃貸住宅管理協会 / (一社)全国住宅産業協会 / (一社)関西住宅産業協会

住所 :
広島県安芸郡海田町堀川町1番8号
免許番号 :
国土交通大臣(2)第9120号
営業時間 :
10:00〜12:30 13:30〜18:00
定休日:
火曜日・水曜日 : 夏季/冬季休暇有り
5/3(日)~5/7(木)GW休暇、5/14(木)臨時休業
お問い合わせ先:
0800-100-9546(通話料無料)

住所 :
広島県広島市東区光町2丁目6-12杉屋ビル102
免許番号 :
国土交通大臣(2)第9113号
営業時間 :
10:00-18:00
定休日:
火曜日
年末年始・GW・夏季休業
お問い合わせ先:
0800-111-0167(通話料無料)
こちらの物件を見ている方におすすめの物件
9.3万円(管理費 0円)
敷
3ヶ月礼
1ヶ月4LDK / 95.47m2 / 築28年
3階 / 4階建
広島県広島市東区戸坂数甲2丁目
即入居可
カード決済可
9.5万円(管理費 0円)
敷
3ヶ月礼
1ヶ月3LDK / 90.0m2 / 築49年
- 階 / 2階建
広島県広島市東区牛田東2丁目
カード決済可
9.6万円(管理費 0円)
敷
3ヶ月礼
1ヶ月2LDK / 92.74m2 / 築30年
1階 / 2階建
広島県安芸郡府中町山田3丁目
パノラマ
9.5万円(管理費 0円)
敷
3ヶ月礼
1ヶ月4LDK / 92.73m2 / 築30年
- 階 / 2階建
広島県広島市安佐南区川内2丁目
カード決済可
9.5万円(管理費 0円)
敷
3ヶ月礼
1ヶ月4LDK / 90.25m2 / 築28年
- 階 / 2階建
広島県広島市安佐南区東原3丁目
即入居可
カード決済可
パノラマ
9.5万円(管理費 0円)
敷
2ヶ月礼
1ヶ月4LDK / 92.0m2 / 築29年
3階 / 5階建
広島県広島市西区古江東町
カード決済可
9.5万円(管理費 0円)
敷
3ヶ月礼
1ヶ月4LDK / 90.25m2 / 築28年
- 階 / 2階建
広島県広島市安佐南区東野3丁目
即入居可
カード決済可
9.5万円(管理費 0円)
敷
3ヶ月礼
0円4LDK / 93.36m2 / 築42年
- 階 / 2階建
広島県広島市西区古江東町
即入居可
カード決済可
9.8万円(管理費 0円)
敷
3ヶ月礼
1ヶ月4LDK / 91.84m2 / 築45年
3階 / 3階建
広島県広島市南区西霞町
新 着
11.5万円(管理費 0円)
敷
2ヶ月礼
1ヶ月4LDK / 88.59m2 / 築38年
1階 / 2階建
広島県広島市安佐南区東野2丁目
カード決済可
ペット可
広島県広島市の地域情報
市区名称
広島市
市区名称 ふりがな(英語)
ひろしまし (hiroshima)
市役所 住所
広島市中区国泰寺町1-6-34
市役所 電話番号
082-245-2111
公式ホームページURL
プロフィール・沿革
広島市は、広島県の西部に位置し、広島湾に面しています。市域内の平地の大部分は、太田川流域に形成された沖積平野からなります。気候は温暖で降水量が少ない、いわゆる「瀬戸内気候区」に属しており、比較的温暖です。平和都市としての世界的な知名度だけでなく、海、山、川などの恵まれた自然環境とそれを生かした農林水産業、プロのオーケストラやスポーツチームをはじめとする文化・スポーツ活動、お好み焼きや瀬戸の恵みによる豊かな食文化、マツダをはじめとする製造業など、多彩な魅力と活力にあふれています。
主な行事
広島みなとフェスタ さくらまつり(広島市植物公園) ひろしまフラワーフェスティバル とうかさん大祭/ゆかたできん祭 広島みなと夢花火大会 ピースメッセージとうろう流し ひろしまフードフェスティバル 胡子大祭/えべっさん 広島城大菊花展 ひろしまドリミネーション ひろしま男子駅伝 広島城オイスターフェス
特産・名産物
お好み焼き もみじまんじゅう かき 太田川しじみ 広島レモン 広島菜漬 広島仏壇 銅蟲(どうちゅう) 一国斎高盛絵 ザ・広島ブランド認定品
人口総数
1,173,543人
ガス料金
(22m3/月)
広島ガス株式会社 5,505円
水道料金
(口径22㎜:20m3/月)
広島市 2,453円
下水道料金
(20m3/月)
広島市 2,260円
都市公園数
1,184
図書館数
13
子育て関連の独自の取り組み
【赤ちゃん安心おでかけ事業】地域の身近な場所でおむつ替え・授乳等ができる施設「にこにこベビールーム」を提供。
乳幼児医療費助成
(通院)
(通院)
対象年齢: 中学校卒業まで
自己負担: 自己負担あり
所得制限: 所得制限あり
乳幼児医療費助成
(入院)
(入院)
対象年齢: 中学校卒業まで
自己負担: 自己負担なし
所得制限: 所得制限あり
出産祝い
なし
一般病院総数
73所
公立保育所数
87所
0歳児保育を実施している公立保育所
69所
私立保育所数
86所
0歳児保育を実施している私立保育所
85所
公立幼稚園数(国立を含む)
19園
私立幼稚園数
61園
小学校数
146校
中学校数
79校
※調査後の制度改変、数値変更等により実際と異なる場合があります。最新情報は各市区役所へお問合せください。
この物件に関連した条件で探す
この物件にお問い合わせする
















