12時間前に物件情報が更新されました
敷金礼金ゼロ
ワコーレ相武台前の賃貸マンション【4階】
敷金・礼金
0
円物件
カード決済可 ※初期費用のみ
3.0万円
(管理費 4,000円)
敷金
0円
礼金
0円
種別
マンション
間取り
1K
広さ
16.55m2
築年数
築33年
階数
4階 / 5階建
住所
神奈川県座間市相武台1丁目
交通
小田急小田原線 相武台前駅 徒歩10分 (0.8km)
小田急小田原線 小田急相模原駅 徒歩21分 (1.68km)
小田急小田原線 座間駅 徒歩39分 (3.12km)
小田急小田原線 小田急相模原駅 徒歩21分 (1.68km)
小田急小田原線 座間駅 徒歩39分 (3.12km)
この物件について
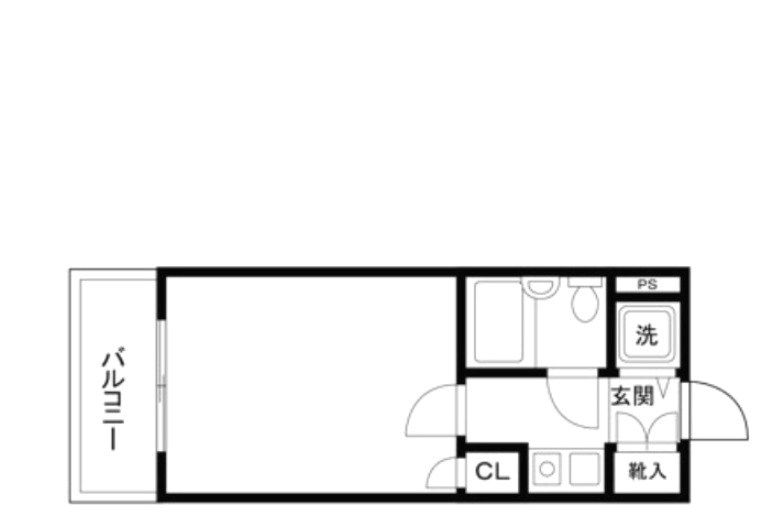
相武台前徒歩10分1Kマンション4階のお部屋です。IHクッキングヒーター・室内洗濯機置き場・エレベーター・オートロック・エアコン付きです。お問い合わせはユーミーらいふまでご連絡ください。
この物件への
お問い合わせはこちら!
お問い合わせはこちら!
無料
敷金礼金ゼロ
ワコーレ相武台前
3.0万円 (管理費 4,000円)
- 敷0円
- 礼0円
1K / 16.55m2 / 4階(5階建)
部屋の特徴
バス・トイレ別
2階以上
駐車場あり
室内洗濯機置場
エアコン付き
ペット相談可
オートロック
洗面所独立
バス・トイレ
シャワー、トイレ、シャワールーム
キッチン
IHクッキングヒーター、冷蔵庫
室内設備
エアコン、オートロック、バルコニー、BS、クローゼット、CS、都市ガス、給湯、下駄箱、室内洗濯機置場、フローリング、収納
部屋の特徴
共用部
駐輪場、エレベーター
建物の特徴
駐車場
無
入居条件
礼金0、普通賃貸借契約 (契約期間:24ヶ月)、保証会社利用必
その他の特徴
クレジットカード支払い可(初期費用のみ)、IT重説対応物件
空室確認や見学したいなどお気軽にお問い合わせください!
この物件への
お問い合わせはこちら!
お問い合わせはこちら!
無料
敷金礼金ゼロ
ワコーレ相武台前
3.0万円 (管理費 4,000円)
- 敷0円
- 礼0円
1K / 16.55m2 / 4階(5階建)
基本情報
賃料
30,000円
4,000円
0円
0円
0円
33,000円
間取り / 専有面積
1K / 16.55m2
間取り詳細
-
種別 / 構造
マンション / 鉄筋コンクリート
築年 / 築年月
築33年 / 1992年3月
所在階 / 階建
4階 / 5階建
駐車場
無
向き
西
住所
神奈川県座間市相武台1丁目
交通
同じ建物で掲載中の物件(全2件)
閲覧中
4階 / -
3.0万円(管理費 4,000円)
敷
0円礼
0円1K / 16.55m2
周辺の環境
500m圏内の施設
1000m圏内の施設
※ 周辺環境は直線距離で表示しています。大東建託パートナーズ株式会社が地図情報の提供事業者から提供を受けた情報を、いい部屋ネット独自の方法で抽出し提供しており、物件に紐づくものではありません。※ 移転や閉鎖等により情報が最新ではない場合があります。周辺環境の情報を利用される際は、ご利用前に各施設に直接お問い合わせください。
詳しい周辺環境は地図でチェック!
駅やお店など周辺環境を地図でチェック!
この物件への
お問い合わせはこちら!
お問い合わせはこちら!
無料
敷金礼金ゼロ
ワコーレ相武台前
3.0万円 (管理費 4,000円)
- 敷0円
- 礼0円
1K / 16.55m2 / 4階(5階建)
契約条件など
取引態様
仲介
入居可能日
応相談
保険
要
特記事項
・連帯保証人:要
・保証人代行:必須 賃貸保証:加入要 初回契約時:60%、月額:1,540円、※月額保証料は口座振替手数料含む(最低初回保証料:24,000円)
・フリーレント:1ヶ月
・鍵交換代等:29,700円、ハウスクリーニング(入居時):46,200円、コンシェルジュ24:1,100円
備考
情報更新日
2025年11月3日 (本日)
次回情報更新日
情報更新日より15日以内
店舗情報

会社名
株式会社ユーミーネット湘南
営業時間 / 定休日
9:30~18:00/水曜日、第2火曜日:GW/夏季/冬季休暇有り
※1月~3月は定休日なし、月末日が水曜日の場合は通常営業
免許番号
神奈川県知事(1)第32294号
所属団体
(公社)神奈川県宅地建物取引業協会 / (公社)全国宅地建物取引業保証協会 / (公社)首都圏不動産公正取引協議会

住所 :
神奈川県横浜市戸塚区戸塚町6003-7
免許番号 :
神奈川県知事(1)第32294号
営業時間 :
9:30~18:00
定休日:
水曜日、第2火曜日:GW/夏季/冬季休暇有り
※1月~3月は定休日なし
お問い合わせ先:
0800-919-0726(通話料無料)

住所 :
神奈川県藤沢市辻堂2丁目7-15
免許番号 :
神奈川県知事(1)第32294号
営業時間 :
9:30~18:00
定休日:
水曜日、第2火曜日:GW/夏季/冬季休暇有り
※1月~3月は定休日なし
お問い合わせ先:
0800-919-0732(通話料無料)

住所 :
神奈川県茅ヶ崎市幸町21-34
免許番号 :
神奈川県知事(1)第32294号
営業時間 :
9:30~18:00
定休日:
水曜日、第2火曜日:GW/夏季/冬季休暇有り
※1月~3月は定休日なし
お問い合わせ先:
0800-919-0727(通話料無料)

住所 :
神奈川県藤沢市南藤沢20-23 アシビシティービル 2階
免許番号 :
神奈川県知事(1)第32294号
営業時間 :
10:00~18:00
定休日:
水曜日、第2火曜日:GW/夏季/冬季休暇有り
※1月~3月は定休日なし、月末日が水曜日の場合は通常営業
お問い合わせ先:
0800-888-3334(通話料無料)

住所 :
神奈川県鎌倉市大船1丁目22-27
免許番号 :
神奈川県知事(1)第32294号
営業時間 :
9:30~18:00
定休日:
水曜日、第2火曜日:GW/夏季/冬季休暇有り
※1月~3月は定休日なし
お問い合わせ先:
0800-919-0725(通話料無料)
こちらの物件を見ている方におすすめの物件
2.8万円(管理費 3,000円)
敷
2ヶ月礼
0円1R / 16.43m2 / 築36年
1階(104号室) / 4階建
神奈川県座間市相武台3丁目
即入居可
カード決済可
3.1万円(管理費 5,000円)
敷
0円礼
0円1K / 16.52m2 / 築33年
1階(102号室) / 2階建
神奈川県座間市相模が丘1丁目
即入居可
敷金礼金ゼロ
カード決済可
ネット無料
2.7万円(管理費 3,000円)
敷
0円礼
0円1K / 16.17m2 / 築38年
2階 / 4階建
神奈川県座間市入谷東2丁目
敷金礼金ゼロ
カード決済可
ペット可
2.3万円(管理費 2,000円)
敷
0円礼
0円1K / 18.18m2 / 築32年
2階(202号室) / 2階建
神奈川県座間市相模が丘5丁目
即入居可
敷金礼金ゼロ
カード決済可
2.4万円(管理費 3,000円)
敷
0円礼
0円1K / 16.8m2 / 築35年
1階(105号室) / 2階建
神奈川県座間市緑ケ丘5丁目
即入居可
敷金礼金ゼロ
カード決済可
2.8万円(管理費 4,000円)
敷
0円礼
0円1R / 18.14m2 / 築39年
5階 / 5階建
神奈川県座間市相武台1丁目
敷金礼金ゼロ
カード決済可
5.0万円(管理費 3,000円)
敷
0円礼
0円1K / 16.5m2 / 築33年
6階 / 6階建
神奈川県相模原市南区相模大野6丁目
敷金礼金ゼロ
2.9万円(管理費 3,000円)
敷
0円礼
0円1R / 17.82m2 / 築39年
2階(206号室) / 2階建
神奈川県相模原市南区上鶴間2丁目
即入居可
敷金礼金ゼロ
3.6万円(管理費 2,000円)
敷
0円礼
0円1R / 18.0m2 / 築33年
1階(0105号室) / 3階建
神奈川県相模原市南区上鶴間本町4丁目
即入居可
敷金礼金ゼロ
パノラマ
3.5万円(管理費 2,000円)
敷
0円礼
0円1K / 15.6m2 / 築37年
1階(101号室) / 3階建
神奈川県大和市中央林間5丁目
即入居可
敷金礼金ゼロ
カード決済可
ネット無料
神奈川県座間市の地域情報
市区名称
座間市
市区名称 ふりがな(英語)
ざまし (zama)
市役所 住所
座間市緑ケ丘1-1-1
市役所 電話番号
046-255-1111
公式ホームページURL
プロフィール・沿革
座間市は、東京から西南へ約40km、横浜から西へ約20km、神奈川県のほぼ中央に位置しています。市域は中央部を南北に縦断する座間丘陵を境として東部には相模野台地が、西部には相模川に沿った沖積低地が広がり、起伏に富んだ地形を構成しています。
主な行事
座間市大凧まつり ひまわりまつり 市民ふるさとまつり
特産・名産物
大和芋 座間産ひまわり米 どんぶり豆腐 地粉座間うどん 座間納豆 ざまみずアルミボトル缶 座間スケッチ ザマオーレ むかしむかし ざまっ子 石川のとん漬 石川の焼豚 凧サブレ ざまりんクッキー ひまわりクッキー 大凧最中 冬のひまわり(焼酎) ひまわり(焼酎) 座間の大和芋(焼酎) 薫ひまわり焼酎・薫ひまわり焼酎(樽仕込み) Mr.ドン 谷戸山ポテト ざまの坂道ころころ きなこ きなこ玉 ざまりんどら焼き ざまりん人形焼き 高座・座間味噌餃子
人口総数
131,356人
ガス料金
(22m3/月)
東京瓦斯株式会社(東京地区等) 3,926円
大東ガス株式会社 4,335円
水道料金
(口径22㎜:20m3/月)
座間市 2,248円
下水道料金
(20m3/月)
座間市 2,634円
都市公園数
46
図書館数
1
子育て関連の独自の取り組み
(1)移動費用支援給付金(妊婦及び乳幼児[0歳~3歳]の養育者に対し給付金を支給。母子健康手帳発行時には1万円、出生時及び1歳、2歳、3歳の誕生日には各1.2万円)。(2)すくすく給付金(1歳及び2歳の養育者に対し1万円を支給)。
乳幼児医療費助成
(通院)
(通院)
対象年齢: 18歳3月末まで
自己負担: 自己負担なし
所得制限: 所得制限なし
乳幼児医療費助成
(入院)
(入院)
対象年齢: 18歳3月末まで
自己負担: 自己負担なし
所得制限: 所得制限なし
出産祝い
なし
一般病院総数
4所
公立保育所数
7所
0歳児保育を実施している公立保育所
7所
私立保育所数
18所
0歳児保育を実施している私立保育所
18所
公立幼稚園数(国立を含む)
0園
私立幼稚園数
9園
小学校数
11校
中学校数
6校
※調査後の制度改変、数値変更等により実際と異なる場合があります。最新情報は各市区役所へお問合せください。
この物件の周辺駅から探す
この物件にお問い合わせする

















