に物件情報が更新されました
ディアレイシャス泉の賃貸マンション【8階】
カード決済可 ※初期費用のみ
インターネット無料
6.05万円
(管理費 8,000円)
敷金
0円
礼金
1ヶ月
敷引・償却金
0円
種別
マンション
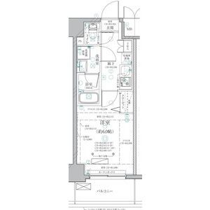
間取り
1K
広さ
22.04m2
築年数
築4年
階数
8階 / 11階建
住所
愛知県名古屋市東区泉3丁目
交通
地下鉄桜通線 高岳駅 徒歩12分 (0.91km)
地下鉄東山線 新栄町駅 徒歩14分 (1.1km)
名鉄瀬戸線 尼ケ坂駅 徒歩18分 (1.38km)
地下鉄東山線 新栄町駅 徒歩14分 (1.1km)
名鉄瀬戸線 尼ケ坂駅 徒歩18分 (1.38km)
この物件について
普段からパソコンを使う方にオススメ物件、ネット回線導入済み。犯罪抑止力を高める防犯カメラの付いたマンションです。クローゼット付きの物件です。
この物件への
お問い合わせはこちら!
お問い合わせはこちら!
無料
ディアレイシャス泉
6.05万円 (管理費 8,000円)
- 敷0円
- 礼1ヶ月
1K / 22.04m2 / 8階(11階建)
部屋の特徴
バス・トイレ別
2階以上
駐車場あり
室内洗濯機置場
エアコン付き
ペット相談可
オートロック
洗面所独立
バス・トイレ
バス・トイレ別、浴室、シャワー、浴室乾燥、温水洗浄便座、トイレ、脱衣所、浴槽
キッチン
システムキッチン、ガスコンロ2口以上
室内設備
エアコン、バルコニー、BS、クローゼット、CS、洗面化粧台、洗面所独立、24時間換気システム、都市ガス、給湯、室内物干し、インターネット接続可、インターネット無料、TV付インターホン、シューズボックス、照明、洗髪洗面化粧台、室内洗濯機置場、フローリング、洗面所にドア、洗面台、収納
部屋の特徴
2階以上、管理人巡回、全居室洋室
共用部
公営水道、オートロック、駐輪場、エレベーター、宅配ボックス、防犯カメラ、敷地内ごみ置場
建物の特徴
分譲賃貸
駐車場
有 月18,000円(税込)
入居条件
法人希望、普通賃貸借契約 (契約期間:2年)
その他の特徴
クレジットカード支払い可(初期費用のみ)、IT重説対応物件、オンライン相談可
360°パノラマ
お部屋をグルッと
いつでも見学!
空室確認や見学したいなどお気軽にお問い合わせください!
この物件への
お問い合わせはこちら!
お問い合わせはこちら!
無料
ディアレイシャス泉
6.05万円 (管理費 8,000円)
- 敷0円
- 礼1ヶ月
1K / 22.04m2 / 8階(11階建)
基本情報
賃料
60,500円
8,000円
0円
1ヶ月
0円
60,500円
間取り / 専有面積
1K / 22.04m2
間取り詳細
-
種別 / 構造
マンション / 鉄筋コンクリート
築年 / 築年月
築4年 / 2022年2月
所在階 / 階建
8階 / 11階建
駐車場
有 月18,000円(税込)
向き
東
住所
愛知県名古屋市東区泉3丁目
交通
▶ その他の周辺駅 (1km圏内)
車道駅 (約984m)
地下鉄桜通線
※ 距離は直線距離であるため、実際に歩く距離以上になる可能性があります。あくまで参考としてお使いください。
周辺の環境
500m圏内の施設
1000m圏内の施設
※ 周辺環境は直線距離で表示しています。大東建託パートナーズ株式会社が地図情報の提供事業者から提供を受けた情報を、いい部屋ネット独自の方法で抽出し提供しており、物件に紐づくものではありません。※ 移転や閉鎖等により情報が最新ではない場合があります。周辺環境の情報を利用される際は、ご利用前に各施設に直接お問い合わせください。
詳しい周辺環境は地図でチェック!
駅やお店など周辺環境を地図でチェック!
この物件への
お問い合わせはこちら!
お問い合わせはこちら!
無料
ディアレイシャス泉
6.05万円 (管理費 8,000円)
- 敷0円
- 礼1ヶ月
1K / 22.04m2 / 8階(11階建)
契約条件など
取引態様
仲介
入居可能日
2026年4月中旬
保険
要
特記事項
・連帯保証人:不要
・保証人代行:必須 保証会社:その他 エポスROOMiD(初回50%、月次1%) GTN(初回100%、月次2%) ルームバンク(初回50%、月次1%) セーフティー(初回50%、年次10,000円)
・契約時クリーニング代:44,000円、エアコン内部洗浄代:11,000円
備考
バルコニー面積:4.06㎡
管理人巡回
■短期違約金:1年未満1ヶ月 ■更新料:新賃料1ヶ月分 ■入居者アプリ登録必須 【法人契約の場合】■敷金礼金:1ヶ月/1ヶ月 ■条件相談可能 鍵交換代:38500円 くらしーど24:1100円
情報更新日
-
次回情報更新日
情報更新日より15日以内
店舗情報

会社名
大東建託リーシング株式会社
営業時間 / 定休日
10:00〜12:30 13:30〜18:00/火曜日・水曜日 : 夏季/冬季休暇有り
4/16店休、GW休暇5/3(日)~5/7(木)
免許番号
国土交通大臣(2)第9120号
所属団体
(公社)首都圏不動産公正取引協議会 / (公財)日本賃貸住宅管理協会 / (一社)全国住宅産業協会 / (一社)関西住宅産業協会

住所 :
愛知県名古屋市名東区明が丘124-2 ami ami annex 1階
免許番号 :
国土交通大臣(2)第9120号
営業時間 :
10:00〜12:30 13:30〜18:00
定休日:
火曜日・水曜日 : 夏季/冬季休暇有り
4/9、4/16、GW休暇 5/3~5/7
お問い合わせ先:
0800-100-6820(通話料無料)
こちらの物件を見ている方におすすめの物件
新 着
5.7万円(管理費 8,550円)
敷
0円礼
0円1K / 21.35m2 / 築6年
2階(203号室) / 12階建
愛知県名古屋市東区泉2丁目
即入居可
敷金礼金ゼロ
カード決済可
ペット可
ネット無料
6.15万円(管理費 8,000円)
敷
0円礼
0円1K / 21.66m2 / 築3年
11階 / 15階建
愛知県名古屋市中区新栄1丁目
敷金礼金ゼロ
ネット無料
パノラマ
5.8万円(管理費 8,000円)
敷
0円礼
0円1K / 21.66m2 / 築5年
8階 / 12階建
愛知県名古屋市中区新栄1丁目
敷金礼金ゼロ
ペット可
ネット無料
パノラマ
6.1万円(管理費 8,000円)
敷
0円礼
0円1K / 21.66m2 / 築3年
12階 / 14階建
愛知県名古屋市西区花の木1丁目
敷金礼金ゼロ
カード決済可
ネット無料
パノラマ
5.55万円(管理費 8,000円)
敷
0円礼
1ヶ月1K / 21.24m2 / 築2年
2階 / 12階建
愛知県名古屋市中区平和2丁目
ネット無料
6.15万円(管理費 8,000円)
敷
0円礼
0円1K / 22.04m2 / 築2年
7階 / 11階建
愛知県名古屋市中区大須2丁目
敷金礼金ゼロ
パノラマ
7.0万円(管理費 7,000円)
敷
0円礼
0円1K / 22.38m2 / 築3年
13階 / 14階建
愛知県名古屋市中区千代田2丁目
敷金礼金ゼロ
ペット可
ネット無料
6.0万円(管理費 7,000円)
敷
0円礼
1ヶ月1K / 22.47m2 / 築3年
4階 / 12階建
愛知県名古屋市北区上飯田西町1丁目
カード決済可
ペット可
ネット無料
パノラマ
6.7万円(管理費 9,000円)
敷
0円礼
0円1K / 22.76m2 / 築4年
12階 / 13階建
愛知県名古屋市千種区内山3丁目
敷金礼金ゼロ
カード決済可
ネット無料
パノラマ
6.0万円(管理費 5,690円)
敷
0円礼
0円1K / 21.41m2 / 築5年
10階 / 14階建
愛知県名古屋市北区志賀南通2丁目
敷金礼金ゼロ
カード決済可
ペット可
ネット無料
パノラマ
愛知県名古屋市の地域情報
市区名称
名古屋市
市区名称 ふりがな(英語)
なごやし (nagoya)
市役所 住所
名古屋市中区三の丸3-1-1
市役所 電話番号
052-961-1111
公式ホームページURL
プロフィール・沿革
名古屋は日本のほぼ中央に位置し、人口が233万人を超える中部地方の政治・経済・文化の中枢都市です。様々な文化を受け入れ、足し算し、独自の文化や「名古屋発祥」を生み出してきました。都市機能も揃い、利便性も高くあらゆる分野において高水準で調和のとれた大都市でありながら、寛容で人を想うマインドが根付き、自然体で生きられるその源泉は、豊かさやゆとりがもたらす「大きなこころ」であり「やさしさ」です。アジア・アジアパラ競技大会の開催や、リニア中央新幹線の品川-名古屋間の開業も予定され、さらに発展していく中、さりげなく、かっこつけることなく、ゆとりがあって豊かな毎日が送れる「やさしい大都市」名古屋です。
主な行事
名古屋城まつり 有松絞りまつり 熱田まつり(尚武祭) 海の日名古屋みなと祭花火大会 中川金魚まつり 世界コスプレサミット 広小路夏まつり にっぽんど真ん中祭り 名古屋まつり
特産・名産物
有松・鳴海絞 きしめん 守口漬 ういろう 味噌煮込みうどん 名古屋コーチン 天むす ひつまぶし 味噌かつ 手羽先 あんかけスパゲティ 台湾ラーメン 台湾まぜそば 小倉トースト どて煮 とんちゃん 鉄板スパ 味噌おでん エビフライ 鬼まんじゅう モーニング カレーうどん えびせんべい
人口総数
2,303,004人
ガス料金
(22m3/月)
東邦瓦斯株式会社 5,307円
水道料金
(口径22㎜:20m3/月)
名古屋市 3,124円
下水道料金
(20m3/月)
名古屋市 1,914円
都市公園数
1,496
図書館数
21
子育て関連の独自の取り組み
(1)妊娠中の体調不良で病院を利用するときなどに使える妊婦のための緊急時タクシー利用券(1万円分)事業(2)子どもを出産、育児する家庭に5万ポイント(5万円相当)分のカタログギフトを進呈するナゴヤわくわくプレゼント事業(3)「なごや子育てアプリなごみー」による子育て支援情報の提供(4)子育て家庭優待カード「ぴよか」の交付(5)インフルエンザ予防接種費用(12歳、15歳、18歳)の全額助成(6)子どもたち本物のヒト・モノ・コトとの出あいを通じて、自分らしい生き方を実現する力を身に付ける授業等の時間「キャリアタイム」(7)私立高等学校授業料補助、高等学校給付型奨学金制度、高等学校等入学支援金制度
乳幼児医療費助成
(通院)
(通院)
対象年齢: 18歳3月末まで
自己負担: 自己負担なし
所得制限: 所得制限なし
乳幼児医療費助成
(入院)
(入院)
対象年齢: 18歳3月末まで
自己負担: 自己負担なし
所得制限: 所得制限なし
出産祝い
あり
ナゴヤわくわくプレゼント事業を実施。名古屋市で出産、育児をする家庭に5万ポイント(5万円相当)分のカタログギフトを贈呈。
一般病院総数
105所
公立保育所数
83所
0歳児保育を実施している公立保育所
83所
私立保育所数
365所
0歳児保育を実施している私立保育所
364所
公立幼稚園数(国立を含む)
21園
私立幼稚園数
138園
小学校数
265校
中学校数
127校
※調査後の制度改変、数値変更等により実際と異なる場合があります。最新情報は各市区役所へお問合せください。
この物件に関連した条件で探す
この物件にお問い合わせする






















