に物件情報が更新されました
新築
即入居可
敷金礼金ゼロ
ジェノヴィア二子新地の賃貸マンション【4階/423号室】
敷金・礼金
0
円物件
12.3万円
(管理費 10,000円)
敷金
0円
礼金
0円
敷引・償却金
0円
種別
マンション
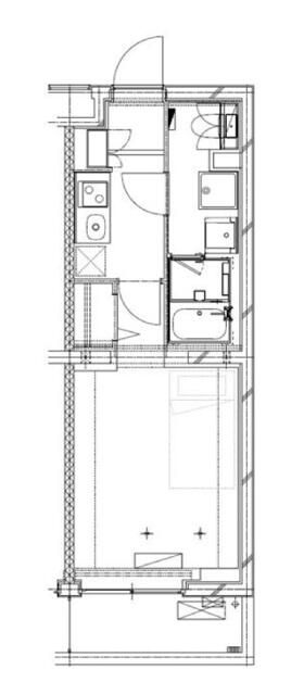
間取り
1K
広さ
25.35m2
築年数
新築
階数
4階 / 5階建
住所
神奈川県川崎市高津区瀬田
交通
東急田園都市線 二子新地駅 徒歩5分 (0.33km)
東急田園都市線 二子玉川駅 徒歩12分 (0.92km)
東急田園都市線 二子玉川駅 徒歩12分 (0.92km)
この物件について
共用部には宅配ボックスが付いているため、家で何時間も待機する必要がありません。収納はクロゼット・シューズボックスなど豊富なので、広々と空間を利用することも可能です。こちらの物件はマンションです。
この物件への
お問い合わせはこちら!
お問い合わせはこちら!
無料
敷金礼金ゼロ
ジェノヴィア二子新地 423号室
12.3万円 (管理費 10,000円)
- 敷0円
- 礼0円
1K / 25.35m2 / 4階(5階建)
部屋の特徴
バス・トイレ別
2階以上
駐車場あり
室内洗濯機置場
エアコン付き
ペット相談可
オートロック
洗面所独立
バス・トイレ
バス・トイレ別、浴室、シャワー、浴室乾燥、温水洗浄便座、トイレ
キッチン
システムキッチン、ガスコンロ2口以上
室内設備
エアコン、オートロック、バルコニー、クローゼット、ダブルロックキー、洗面化粧台、洗面所独立、24時間換気システム、都市ガス、TV付インターホン、シューズボックス、室内洗濯機置場、フローリング、洗面台、収納
部屋の特徴
新築
共用部
駐輪場、エレベーター、宅配ボックス、防犯カメラ
建物の特徴
駐車場
無
入居条件
礼金0、二人可、ペット相談、普通賃貸借契約 (契約期間:2年)、小型犬可、猫可
その他の特徴
IT重説対応物件、オンライン相談可
360°パノラマ
お部屋をグルッと
いつでも見学!
空室確認や見学したいなどお気軽にお問い合わせください!
この物件への
お問い合わせはこちら!
お問い合わせはこちら!
無料
敷金礼金ゼロ
ジェノヴィア二子新地 423号室
12.3万円 (管理費 10,000円)
- 敷0円
- 礼0円
1K / 25.35m2 / 4階(5階建)
基本情報
賃料
123,000円
10,000円
0円
0円
0円
123,000円
間取り / 専有面積
1K / 25.35m2
間取り詳細
洋8
種別 / 構造
マンション / 鉄筋コンクリート
築年 / 築年月
新築 / 2025年11月
所在階 / 階建
4階 / 5階建
駐車場
無
向き
北
住所
神奈川県川崎市高津区瀬田
交通
東急田園都市線 二子新地駅 徒歩5分 (0.33km)
東急田園都市線 二子玉川駅 徒歩12分 (0.92km)
▶ その他の周辺駅 (1km圏内)
高津駅 (約747m)
東急大井町線、東急田園都市線
※ 距離は直線距離であるため、実際に歩く距離以上になる可能性があります。あくまで参考としてお使いください。
周辺の環境
500m圏内の施設
1000m圏内の施設
※ 周辺環境は直線距離で表示しています。大東建託パートナーズ株式会社が地図情報の提供事業者から提供を受けた情報を、いい部屋ネット独自の方法で抽出し提供しており、物件に紐づくものではありません。※ 移転や閉鎖等により情報が最新ではない場合があります。周辺環境の情報を利用される際は、ご利用前に各施設に直接お問い合わせください。
詳しい周辺環境は地図でチェック!
駅やお店など周辺環境を地図でチェック!
この物件への
お問い合わせはこちら!
お問い合わせはこちら!
無料
敷金礼金ゼロ
ジェノヴィア二子新地 423号室
12.3万円 (管理費 10,000円)
- 敷0円
- 礼0円
1K / 25.35m2 / 4階(5階建)
契約条件など
取引態様
仲介
入居可能日
即入居可
保険
要
特記事項
・保証人代行:必須 保証会社:その他 加入要 初回契約時:40%、月額:2,700円、※月額保証に保険、駆けつけ費用含む ※外国籍の場合、初回保証料100% 年毎10,800円
・駐輪場空有
・敷金積増:123,000円 (ペット飼育)
・契約事務手数料:11,000円、退去時ハウスクリーニング:38,500円、消臭除菌サービス:11,000円
備考
・1年未満の解約は短期解約違約金有⇒賃料、管理費総額1ヶ月分 ・解約予告2ヶ月前 ・ペット飼育の場合、敷金1ヶ月増額/解約時償却&初回保証料+20%(敷金解約時償却に原状回復費用は含まれません) ・法人契約の場合、敷金1ヶ月増額
情報更新日
-
次回情報更新日
情報更新日より15日以内
店舗情報

会社名
大東建託リーシング株式会社
営業時間 / 定休日
10:00〜12:30 13:30〜18:00/火曜日・水曜日 : 夏季/冬季休暇有り
免許番号
国土交通大臣(2)第9120号
所属団体
(公社)首都圏不動産公正取引協議会 / (公財)日本賃貸住宅管理協会 / (一社)全国住宅産業協会 / (一社)関西住宅産業協会

住所 :
東京都立川市柴崎町3丁目1-1
免許番号 :
国土交通大臣(2)第9120号
営業時間 :
10:00〜12:30 13:30〜18:00
定休日:
火曜日・水曜日 : 夏季/冬季休暇有り
お問い合わせ先:
0800-100-5952(通話料無料)

住所 :
神奈川県小田原市栄町2丁目8-31 プランタン岩下1階A号室
免許番号 :
国土交通大臣(2)第9120号
営業時間 :
10:00〜12:30 13:30〜18:00
定休日:
火曜日・水曜日 : 夏季/冬季休暇有り
休憩12:30~13:30
お問い合わせ先:
0800-100-6379(通話料無料)
空室確認や見学したいなどお気軽にお問い合わせください!
照会No.: 313-5779038
物件ライブラリー:
ジェノヴィア二子新地※実際の連絡・案内・契約等については、各地域の協力仲介会社での対応となる場合がございますのでご了承の上お問合せください。(協力会社一覧はこちら)
※成約の際は、当社・協力仲介会社のいずれの場合でも仲介手数料が必要となります。
こちらの物件を見ている方におすすめの物件
12.5万円(管理費 10,000円)
敷
0円礼
0円1K / 25.12m2 / 築5年
3階(0301号室) / 8階建
神奈川県川崎市高津区二子2丁目
即入居可
敷金礼金ゼロ
13.1万円(管理費 10,000円)
敷
1ヶ月礼
1ヶ月1DK / 25.11m2 / 築5年
4階 / 6階建
神奈川県川崎市高津区諏訪1丁目
パノラマ
本日新着
12.8万円(管理費 10,000円)
敷
1ヶ月礼
0円1K / 25.2m2 / 築2年
6階 / 6階建
神奈川県川崎市高津区二子3丁目
パノラマ
本日新着
11.1万円(管理費 15,000円)
敷
1ヶ月礼
0円1DK / 25.62m2 / 築1年
2階 / 5階建・地下1階
神奈川県川崎市高津区久本2丁目
ペット可
ネット無料
パノラマ
本日新着
11.59万円(管理費 9,100円)
敷
1ヶ月礼
1ヶ月1K / 25.11m2 / 新築
3階(302号室) / 4階建
神奈川県川崎市中原区上丸子
新築
カード決済可
10.5万円(管理費 9,000円)
敷
0円礼
1ヶ月1K / 25.37m2 / 新築
4階(401号室) / 5階建
神奈川県川崎市中原区下小田中4丁目
新築
10.5万円(管理費 9,000円)
敷
0円礼
0円1K / 26.1m2 / 新築
3階(306号室) / 5階建
神奈川県川崎市中原区上小田中3丁目
新築
即入居可
敷金礼金ゼロ
パノラマ
12.0万円(管理費 15,000円)
敷
0円礼
0円1DK / 25.92m2 / 新築
1階(102号室) / 5階建
神奈川県川崎市中原区今井仲町
新築
即入居可
敷金礼金ゼロ
ペット可
11.45万円(管理費 16,000円)
敷
0円礼
0.5ヶ月1DK / 25.52m2 / 築6年
1階(116号室) / 5階建
神奈川県川崎市中原区小杉町2丁目
即入居可
ペット可
ネット無料
13.9万円(管理費 10,000円)
敷
1ヶ月礼
1ヶ月1K / 25.31m2 / 築3年
6階 / 6階建
神奈川県川崎市中原区小杉町2丁目
パノラマ
神奈川県川崎市の地域情報
市区名称
川崎市
市区名称 ふりがな(英語)
かわさきし (kawasaki)
市役所 住所
川崎市川崎区宮本町1
市役所 電話番号
044-200-2111
公式ホームページURL
プロフィール・沿革
川崎市は、自然豊かな多摩川に面し、市内を縦断するJR南武線に加え5つの私鉄が横断する利便性の高い人口増加が続くまちです。首都圏有数の広さを誇る生田緑地には「藤子・F・不二雄ミュージアム」、川崎駅前には世界有数の音響を誇る「ミューザ川崎シンフォニーホール」、さらに市内に2つの音楽大学や日本初の映画の専科大学が立地するとともに、スポーツではJリーグ川崎フロンターレ等の数多くのトップチームが活躍しています。
主な行事
動物園まつり 宮崎台ふる里さくら祭 かわさきアジアンフェスタ 川崎・しんゆり芸術祭(アルテリッカしんゆり) 川崎大師風鈴市 フェスタサマーミューザKAWASAKI 市制記念多摩川花火大会 かわさき阿波おどり みんなの川崎祭 川崎夜市 川崎みなと祭り かわさき市民祭り 稲毛神社山王祭 かわさきジャズ KAWASAKIしんゆり映画祭 はいさいフェスタ かわさき多摩川マラソン INTERNATIONAL STREET FESTIVAL KAWASAKI(ISF) しんゆりフェスティバル・マルシェ かなまら祭り いいじゃんかわさき
特産・名産物
川崎大師の久寿餅 川崎大師の飴 大師巻 かわさきそだち(川崎市内農産物総称)
人口総数
1,529,136人
ガス料金
(22m3/月)
東京瓦斯株式会社(東京地区等) 3,926円
水道料金
(口径22㎜:20m3/月)
川崎市 2,321円
下水道料金
(20m3/月)
川崎市 2,156円
都市公園数
1,186
図書館数
10
子育て関連の独自の取り組み
(1)産後ケアや妊娠期サポート事業、妊娠・出産SOS電話相談事業等(妊娠・出産包括支援事業として実施)。(2)産前・産後家庭支援ヘルパー派遣事業(妊娠中または産後6ヶ月[多胎の方は1年]までで、母親が体調不良等により育児や家事が困難かつ、日中ほかに育児や家事を行う者がいない家庭に、20回[多胎の方は60回]までヘルパーを派遣し、育児や家事のお手伝いを行う)。
乳幼児医療費助成
(通院)
(通院)
対象年齢: 中学校卒業まで
自己負担: 自己負担あり
所得制限: 所得制限なし
乳幼児医療費助成
(入院)
(入院)
対象年齢: 中学校卒業まで
自己負担: 自己負担なし
所得制限: 所得制限なし
出産祝い
なし
一般病院総数
33所
公立保育所数
21所
0歳児保育を実施している公立保育所
20所
私立保育所数
429所
0歳児保育を実施している私立保育所
320所
公立幼稚園数(国立を含む)
0園
私立幼稚園数
78園
小学校数
118校
中学校数
58校
※調査後の制度改変、数値変更等により実際と異なる場合があります。最新情報は各市区役所へお問合せください。
この物件の周辺駅から探す
この物件にお問い合わせする






































