7日前に物件情報が更新されました
敷金礼金ゼロ
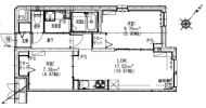
エルファーロ駒沢公園Ⅰの賃貸マンション【3階】
敷金・礼金
0
円物件
インターネット無料
22.6万円
(管理費 15,000円)
敷金
0円
礼金
0円
種別
マンション
間取り
2LDK
広さ
49.01m2
築年数
築2年
階数
3階 / 5階建
住所
東京都世田谷区駒沢5丁目
交通
東急田園都市線 駒沢大学駅 徒歩13分 (1.04km)
東急田園都市線 桜新町駅 徒歩22分 (1.76km)
東急大井町線 等々力駅 徒歩25分 (2km)
東急田園都市線 桜新町駅 徒歩22分 (1.76km)
東急大井町線 等々力駅 徒歩25分 (2km)
この物件について
収納はクロゼット・シューズボックスなど豊富なので、衣類や履き物の整理がしやすく便利です。共用部には宅配ボックスが備え付けられているため、好きなタイミングで荷物を受け取ることができます。新築マンションです。周辺に駅が二つあり、交通の利便性が高いです。世田谷区エリアや駒沢大学付近での新生活をお考えなら、お部屋探しは当社にお任せ下さい。当社でなら素敵なお部屋がきっと見つかります。
この物件への
お問い合わせはこちら!
お問い合わせはこちら!
無料

敷金礼金ゼロ
エルファーロ駒沢公園Ⅰ
22.6万円 (管理費 15,000円)
- 敷0円
- 礼0円
2LDK / 49.01m2 / 3階(5階建)
部屋の特徴
バス・トイレ別
2階以上
駐車場あり
室内洗濯機置場
エアコン付き
ペット相談可
オートロック
洗面所独立
バス・トイレ
バス・トイレ別、浴室、浴室乾燥、温水洗浄便座、トイレ
キッチン
システムキッチン
室内設備
エアコン、オートロック、CATV、クローゼット、洗面所独立、都市ガス、給湯、インターネット接続可、インターネット無料、TV付インターホン、シューズボックス、オートロック・モニタ付、室内洗濯機置場、フローリング、洗面台、収納
部屋の特徴
共用部
公営水道、宅配ボックス、防犯カメラ、敷地内ごみ置場
建物の特徴
駐車場
無
入居条件
礼金0、法人可、ピアノ不可、ペット相談、楽器等の使用不可、事務所利用不可、普通賃貸借契約 (契約期間:24ヶ月)、小型犬可、猫可
その他の特徴
空室確認や見学したいなどお気軽にお問い合わせください!
この物件への
お問い合わせはこちら!
お問い合わせはこちら!
無料

敷金礼金ゼロ
エルファーロ駒沢公園Ⅰ
22.6万円 (管理費 15,000円)
- 敷0円
- 礼0円
2LDK / 49.01m2 / 3階(5階建)
基本情報
賃料
226,000円
15,000円
0円
0円
0円
226,000円
間取り / 専有面積
2LDK / 49.01m2
種別 / 構造
マンション / 鉄筋コンクリート
築年 / 築年月
築2年 / 2023年9月
所在階 / 階建
3階 / 5階建
向き
東
住所
東京都世田谷区駒沢5丁目
交通
同じ建物で掲載中の物件(全3件)
閲覧中

3階 / -
22.6万円(管理費 15,000円)
敷
0円礼
0円2LDK / 49.01m2
周辺の環境
100m圏内の施設
500m圏内の施設
※ 周辺環境は直線距離で表示しています。大東建託パートナーズ株式会社が地図情報の提供事業者から提供を受けた情報を、いい部屋ネット独自の方法で抽出し提供しており、物件に紐づくものではありません。※ 移転や閉鎖等により情報が最新ではない場合があります。周辺環境の情報を利用される際は、ご利用前に各施設に直接お問い合わせください。
詳しい周辺環境は地図でチェック!
駅やお店など周辺環境を地図でチェック!
この物件への
お問い合わせはこちら!
お問い合わせはこちら!
無料

敷金礼金ゼロ
エルファーロ駒沢公園Ⅰ
22.6万円 (管理費 15,000円)
- 敷0円
- 礼0円
2LDK / 49.01m2 / 3階(5階建)
契約条件など
取引態様
仲介
入居可能日
応相談
保険
要
特記事項
・保証人代行:必須 保証会社:その他 ※エポス ルームIDからの審査になります。 【ルームID】月額総賃料の50%/月次保証料、月額総賃料の1.5%/1年毎10,000円 ●エポスグローバルプラン利用時:月額総賃料の100%,月額総賃料の2% 【アーク賃貸保証】月額総賃料の40%/次年度以降10,000円※引落し手数料550円(税込)
・無料 ファイバーゲート 0120-988-660
・プレミアデスク(2年/税込):16,500円、契約時ルームクリーニング費用(税込):126,500円
備考
鍵交換代:38500円 世田谷区エリアでの住まいなら、住み心地も快適な「エルファーロ駒沢公園Ⅰ」はいかがでしょうか。収納はシューズボックス・クロゼットなど豊富なので、広々と空間を利用することも可能です。三口コンロが付いている物件です。不動産経験の豊富なスタッフが世田谷区や駒沢大学付近のお部屋探しを快適にサポート致します。是非一度お問い合わせ下さい。
情報更新日
2025年10月7日 (7日前)
次回情報更新日
情報更新日より15日以内
店舗情報

会社名
株式会社リブリッチ
営業時間 / 定休日
10:00~18:00/水曜日
免許番号
国土交通大臣(1)第10580号
所属団体
(公社)東京都宅地建物取引業協会 / (公社)首都圏不動産公正取引協議会 / (公社)全国宅地建物取引業保証協会

住所 :
東京都世田谷区太子堂4丁目18番15号 マガザン三軒茶屋2-3階
免許番号 :
東京都知事免許(1)第109691号
営業時間 :
10:00~18:00
定休日:
水曜日
お問い合わせ先:
0800-222-3234(通話料無料)

住所 :
東京都新宿区西新宿1丁目16番13号 桑原ビル4階
免許番号 :
国土交通大臣(2)第9120号
営業時間 :
10:00〜12:30 13:30〜18:00
定休日:
水曜日 : 夏季/冬季休暇有り
臨時休業日:10/16(木)
お問い合わせ先:
0800-170-2572(通話料無料)

住所 :
東京都港区三田3丁目1-19第12シグマビルディング三田5F
免許番号 :
東京都知事(2)第99461号
営業時間 :
10:00~18:30
定休日:
水曜日
お問い合わせ先:
0800-100-1150(通話料無料)

住所 :
東京都新宿区四谷1丁目9-3新盛ビル3階
免許番号 :
東京都知事(1)第110262号
営業時間 :
10:00~19:00
定休日:
水曜日
お問い合わせ先:
0800-888-7688(通話料無料)

住所 :
東京都三鷹市下連雀3丁目23-12アージェントビル3F
免許番号 :
東京都知事(4)第91240号
営業時間 :
10:00~18:00
定休日:
水曜日
お問い合わせ先:
0800-888-7166(通話料無料)

住所 :
東京都練馬区豊玉北5丁目22-5 サンライズ・モリタビル1階
免許番号 :
国土交通大臣(2)第9120号
営業時間 :
10:00〜12:30 13:30〜18:00
定休日:
火曜日・水曜日 : 夏季/冬季休暇有り
10月16日(木)は臨時休業。
お問い合わせ先:
0800-100-5796(通話料無料)

住所 :
東京都豊島区南池袋1丁目21番7号 イー・パートナーズ池袋駅前ビル8階
免許番号 :
国土交通大臣(2)第9120号
営業時間 :
10:00〜12:30 13:30〜18:00
定休日:
水曜日 : 夏季/冬季休暇有り
10/16(木)は店休日となります。
お問い合わせ先:
0800-170-7743(通話料無料)

住所 :
東京都渋谷区恵比寿南3丁目3-1 VORT恵比寿Ⅳ 6階
免許番号 :
東京都知事免許(1)第106733号
営業時間 :
10:30~19:00
定休日:
不定休
お問い合わせ先:
0800-222-5230(通話料無料)

住所 :
東京都杉並区西荻南3丁目13-1
免許番号 :
東京都知事免許(2)第103136号
営業時間 :
10:00~18:00
定休日:
火曜日・水曜日 8月18日~22日は夏季休暇となります。
お問い合わせ先:
0800-222-7271(通話料無料)
空室確認や見学したいなどお気軽にお問い合わせください!
照会No.: 1306623
物件ライブラリー:
エルファーロ駒沢公園Ⅰ※実際の連絡・案内・契約等については、各地域の協力仲介会社での対応となる場合がございますのでご了承の上お問合せください。(協力会社一覧はこちら)
※成約の際は、当社・協力仲介会社のいずれの場合でも仲介手数料が必要となります。
こちらの物件を見ている方におすすめの物件

19.9万円(管理費 15,000円)
敷
0円礼
0円2LDK / 46.8m2 / 築4年
4階(0406A) / 4階建
東京都世田谷区駒沢3丁目
即入居可
敷金礼金ゼロ
カード決済可
ペット可
ネット無料
パノラマ

20.7万円(管理費 10,000円)
敷
1ヶ月礼
2ヶ月2LDK / 48.37m2 / 新築
1階 / 3階建
東京都世田谷区等々力5丁目
新築
ネット無料

23.7万円(管理費 20,000円)
敷
0円礼
0円2LDK / 47.74m2 / 築1年未満
2階(206号室) / 4階建
東京都世田谷区桜丘5丁目
即入居可
敷金礼金ゼロ
ペット可
ネット無料
パノラマ

19.9万円(管理費 5,000円)
敷
0円礼
1ヶ月2DK / 50.59m2 / 築3年
2階 / 2階建
東京都世田谷区等々力6丁目
ペット可
ネット無料

26.1万円(管理費 15,000円)
敷
0円礼
0円2DK / 51.85m2 / 新築
B1-1階(0105号室) / 3階建・地下1階
東京都世田谷区下馬5丁目
新築
即入居可
敷金礼金ゼロ
ペット可
ネット無料

24.5万円(管理費 20,000円)
敷
1ヶ月礼
0円2LDK / 47.37m2 / 新築
2階(305号室) / 4階建・地下1階
東京都目黒区大岡山1丁目
新築
即入居可
カード決済可
ペット可
ネット無料
パノラマ

24.9万円(管理費 12,000円)
敷
1ヶ月礼
0円2LDK / 48.61m2 / 新築
1階(103号室) / 3階建
東京都目黒区鷹番2丁目
新築
ペット可
ネット無料
新 着

25.7万円(管理費 12,000円)
敷
1ヶ月礼
0円2LDK / 48.61m2 / 新築
2階(2F) / 3階建
東京都目黒区鷹番2丁目
新築
ペット可
ネット無料

25.2万円(管理費 10,000円)
敷
1ヶ月礼
1ヶ月2LDK / 50.07m2 / 築2年
4階 / 4階建
東京都品川区小山2丁目

22.7万円(管理費 15,000円)
敷
0円礼
0円2SLDK / 48.02m2 / 築4年
4階 / 4階建
東京都目黒区碑文谷3丁目
敷金礼金ゼロ
東京都世田谷区の地域情報
市区名称
世田谷区
市区名称 ふりがな(英語)
せたがやく (setagaya)
市役所 住所
世田谷区世田谷4-21-27
市役所 電話番号
03-5432-1111
公式ホームページURL
プロフィール・沿革
世田谷区は、23区中の西南端にあり、東は目黒区・渋谷区、北は杉並区・三鷹市、西は狛江市・調布市、南は大田区とそれぞれ接し、さらに多摩川をはさんで神奈川県川崎市と向かい合っています。現在約91万人の住む住宅都市となり、開発が進む中、緑化の推進や環境保全など、潤いのあるまちづくりに取り組んでいます。
主な行事
せたがやふるさと区民まつり 雑居まつり 世田谷のボロ市 せたがや梅まつり 等々力渓谷イベント 世田谷区たまがわ花火大会及び多摩川クリーン作戦 烏山地域蘆花まつり
特産・名産物
大蔵大根 城南小松菜 下山千歳白菜 世田谷みやげ指定商品
人口総数
918,141人
ガス料金
(22m3/月)
東京瓦斯株式会社(東京地区等) 3,926円
水道料金
(口径22㎜:20m3/月)
東京都水道局 2,816円
下水道料金
(20m3/月)
東京都下水道局 2,068円
都市公園数
442
図書館数
16
子育て関連の独自の取り組み
(1)産後ケア事業(産後の母子を対象に母体ケア、乳児ケア、育児相談・指導などを行う)。(2)新教科「日本語」教育(2007年より世田谷区立の全小・中学校にて実施)(3)せたがや0→1(ぜろいち)子育てエール(5ヶ月から11ヶ月の子供を育てる家庭への見守り訪問事業)(4)世田谷区バースデーサポート事業(1歳を迎える子供のいる家庭へ子育て支援用品等の購入に使用できるデジタルギフト贈呈。※条件あり)(5)子育てステーションの設置(利便性の高い駅前に点在。多機能子育て支援拠点施設)
乳幼児医療費助成
(通院)
(通院)
対象年齢: 18歳3月末まで
自己負担: 自己負担なし
所得制限: 所得制限なし
乳幼児医療費助成
(入院)
(入院)
対象年齢: 18歳3月末まで
自己負担: 自己負担なし
所得制限: 所得制限なし
出産祝い
あり
出産児1人につき5万円を支給。
一般病院総数
27所
公立保育所数
44所
0歳児保育を実施している公立保育所
20所
私立保育所数
172所
0歳児保育を実施している私立保育所
158所
公立幼稚園数(国立を含む)
8園
私立幼稚園数
54園
小学校数
70校
中学校数
52校
※調査後の制度改変、数値変更等により実際と異なる場合があります。最新情報は各市区役所へお問合せください。
この物件の周辺駅から探す
この物件にお問い合わせする