5日前に物件情報が更新されました
新築
KEIAI RESIDENCE 北越谷Ⅲの賃貸アパート【1階/102号室】
インターネット無料
7.4万円
(管理費 3,500円)
敷金
0円
礼金
1ヶ月
種別
アパート
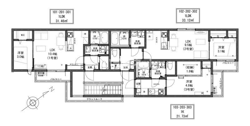
間取り
1LDK
広さ
33.12m2
築年数
新築
階数
1階 / 3階建
住所
埼玉県越谷市東大沢1丁目
交通
東武伊勢崎線 北越谷駅 徒歩11分 (0.82km)
この物件について
共用部には宅配ボックスを備え付けているため、対面で荷物を受け取る必要がありません。セキュリティ面は、TVインターホン・オートロックなど充実しているので、防犯対策もばっちりです。
この物件への
お問い合わせはこちら!
お問い合わせはこちら!
無料
KEIAI RESIDENCE 北越谷Ⅲ 102号室
7.4万円 (管理費 3,500円)
- 敷0円
- 礼1ヶ月
1LDK / 33.12m2 / 1階(3階建)
部屋の特徴
バス・トイレ別
2階以上
駐車場あり
室内洗濯機置場
エアコン付き
ペット相談可
オートロック
洗面所独立
バス・トイレ
バス・トイレ別、浴室、浴室乾燥、温水洗浄便座、トイレ、脱衣所、浴槽
キッチン
システムキッチン
室内設備
エアコン、オートロック、バルコニー、クローゼット、洗面所独立、プロパンガス、インターネット接続可、インターネット無料、TV付インターホン、シューズボックス、室内洗濯機置場、フローリング、洗面台、収納
部屋の特徴
角部屋、新築、未入居
共用部
宅配ボックス
建物の特徴
駐車場
無
入居条件
普通賃貸借契約 (契約期間:2年)
その他の特徴
IT重説対応物件、オンライン相談可
360°パノラマ
お部屋をグルッと
いつでも見学!
空室確認や見学したいなどお気軽にお問い合わせください!
この物件への
お問い合わせはこちら!
お問い合わせはこちら!
無料
KEIAI RESIDENCE 北越谷Ⅲ 102号室
7.4万円 (管理費 3,500円)
- 敷0円
- 礼1ヶ月
1LDK / 33.12m2 / 1階(3階建)
基本情報
賃料
74,000円
3,500円
0円
1ヶ月
0円
74,000円
間取り / 専有面積
1LDK / 33.12m2
間取り詳細
LDK9.5, 洋3.1
種別 / 構造
アパート / 木造
築年 / 築年月
新築 / 2025年9月
所在階 / 階建
1階 / 3階建
駐車場
無
向き
南東
住所
埼玉県越谷市東大沢1丁目
交通
東武伊勢崎線 北越谷駅 徒歩11分 (0.82km)
同じ建物で掲載中の物件(全6件)
閲覧中
1階 / 102号室
7.4万円(管理費 3,500円)
敷
0円礼
1ヶ月1LDK / 33.12m2 / 2025年10月下旬
周辺の環境
500m圏内の施設
1000m圏内の施設
※ 周辺環境は直線距離で表示しています。大東建託パートナーズ株式会社が地図情報の提供事業者から提供を受けた情報を、いい部屋ネット独自の方法で抽出し提供しており、物件に紐づくものではありません。※ 移転や閉鎖等により情報が最新ではない場合があります。周辺環境の情報を利用される際は、ご利用前に各施設に直接お問い合わせください。
詳しい周辺環境は地図でチェック!
駅やお店など周辺環境を地図でチェック!
この物件への
お問い合わせはこちら!
お問い合わせはこちら!
無料
KEIAI RESIDENCE 北越谷Ⅲ 102号室
7.4万円 (管理費 3,500円)
- 敷0円
- 礼1ヶ月
1LDK / 33.12m2 / 1階(3階建)
契約条件など
取引態様
仲介
入居可能日
2025年10月下旬
保険
要
特記事項
・保証人代行:必須 初回保証料:家賃総額50% 月額保証料:900円/月
・退去時清掃費用:66,000円、契約事務手数料:16,500円
備考
■KEIAI CLUB会費:2,750円(税込)/月・火災保険(楽天損害保険株式会社様)・24時間サポート(※楽天損保加入者のみ)・インターネット使用料※火災保険はKEIAI CLUB内に付帯しておりますので、別途費用はかかりません。■写真はイメージ画像となります。 鍵交換代:27500円 KEIAI CLUB会費:2750円
情報更新日
2025年10月25日 (5日前)
次回情報更新日
情報更新日より15日以内
店舗情報

会社名
大東建託リーシング株式会社
営業時間 / 定休日
10:00〜12:30 13:30〜18:00/火曜日・水曜日 : 夏季/冬季休暇有り
免許番号
国土交通大臣(2)第9120号
所属団体
(公社)首都圏不動産公正取引協議会 / (公財)日本賃貸住宅管理協会 / (一社)全国住宅産業協会 / (一社)関西住宅産業協会

住所 :
埼玉県春日部市中央6丁目1番地1 RSビル1階
免許番号 :
国土交通大臣(2)第9120号
営業時間 :
10:00〜12:30 13:30〜18:00
定休日:
火曜日・水曜日 : 夏季/冬季休暇有り
12:30~13:30昼休憩 (臨時休業 11/21(金))
お問い合わせ先:
0800-100-3220(通話料無料)

住所 :
埼玉県熊谷市中西1丁目8-24
免許番号 :
国土交通大臣(2)第9120号
営業時間 :
10:00〜12:30 13:30〜18:00
定休日:
火曜日・水曜日 : 夏季/冬季休暇有り
10/16休業
お問い合わせ先:
0800-100-3730(通話料無料)
空室確認や見学したいなどお気軽にお問い合わせください!
照会No.: 285-5544216
物件ライブラリー:
KEIAI RESIDENCE 北越谷Ⅲ※実際の連絡・案内・契約等については、各地域の協力仲介会社での対応となる場合がございますのでご了承の上お問合せください。(協力会社一覧はこちら)
※成約の際は、当社・協力仲介会社のいずれの場合でも仲介手数料が必要となります。
こちらの物件を見ている方におすすめの物件
7.6万円(管理費 3,500円)
敷
0円礼
1ヶ月1LDK / 31.98m2 / 新築
2階(202号室) / 3階建
埼玉県越谷市大沢
新築
ネット無料
パノラマ
8.05万円(管理費 4,500円)
敷
0円礼
1ヶ月1LDK / 34.63m2 / 築1年
1階 / 3階建
埼玉県越谷市瓦曽根1丁目
パノラマ
7.6万円(管理費 3,000円)
敷
0円礼
0円1LDK / 32.52m2 / 新築
2階(201号室) / 4階建
埼玉県越谷市大字袋山
新築
即入居可
敷金礼金ゼロ
ネット無料
7.4万円(管理費 3,500円)
敷
0円礼
1ヶ月1LDK / 31.0m2 / 新築
1階(103号室) / 3階建
埼玉県越谷市大字蒲生
新築
ネット無料
パノラマ
8.4万円(管理費 6,000円)
敷
0円礼
1ヶ月1K / 31.08m2 / 築4年
3階(302号室) / 3階建
埼玉県越谷市中町
即入居可
ペット可
ネット無料
パノラマ
8.5万円(管理費 6,000円)
敷
0円礼
1ヶ月1R / 33.96m2 / 築2年
2階(202号室) / 3階建
埼玉県越谷市新越谷1丁目
即入居可
ネット無料
パノラマ
6.8万円(管理費 3,000円)
敷
0円礼
1ヶ月1LDK / 34.45m2 / 新築
1階(101号室) / 3階建
埼玉県吉川市美南1丁目
新築
ネット無料
パノラマ
6.4万円(管理費 3,000円)
敷
0円礼
1.05ヶ月1LDK / 32.73m2 / 新築
1階(103号室) / 2階建
埼玉県春日部市増富
新築
ペット可
パノラマ
8.1万円(管理費 8,000円)
敷
1ヶ月礼
1ヶ月1K / 33.65m2 / 新築
1階(00103号室) / 3階建
埼玉県草加市栄町2丁目
新築
即入居可
カード決済可
ネット無料
7.8万円(管理費 6,000円)
敷
0円礼
80,000円1K / 31.85m2 / 築4年
3階 / 3階建
埼玉県吉川市保1丁目
ネット無料
埼玉県越谷市の地域情報
市区名称
越谷市
市区名称 ふりがな(英語)
こしがやし (koshigaya)
市役所 住所
越谷市越ヶ谷4-2-1
市役所 電話番号
048-964-2111
公式ホームページURL
プロフィール・沿革
越谷市は、埼玉県の東南部、都心から25km圏内に位置し、面積は60.24k㎡です。古くから「水郷こしがや」と呼ばれ、東端を大落古利根川と中川、南西端を綾瀬川、中央を元荒川が貫流しているほか、新方川や葛西用水をはじめ、多くの河川や用水が縦横に流れています。
主な行事
越谷市民まつり 越谷花火大会 南越谷阿波踊り 七夕フェスタ こしがや産業フェスタ こしがや田んぼアート 元旦マラソン大会 不動橋こいのぼりフェスティバル 北川崎の虫追い 下間久里の獅子舞 越谷梅林公園梅まつり 出羽チューリップコミュニティフェスタ 大相模ひまわりフェスタ 越ヶ谷秋まつり こしがや薪能 協働フェスタ 越谷国際フェスティバル Act Green ECO WEEK 越ヶ谷宿の雛めぐり まるななマーケット
特産・名産物
越谷だるま 越谷手焼きせんべい 越谷ひな人形 越谷甲冑 越谷桐箱 越谷桐たんす 籠染灯籠 都うちわ 江戸切子 彫刻刀(彫刀晟) こしがや鴨ネギ鍋 純米清酒越ヶ谷宿 太郎兵衛もち 越谷ねぎ クワイ 山東菜 イチゴ チューリップ 小松菜
人口総数
343,062人
ガス料金
(22m3/月)
東京瓦斯株式会社(東京地区等) 3,926円
東彩ガス株式会社(越谷・春日部地区) 4,893円
水道料金
(口径22㎜:20m3/月)
越谷・松伏水道企業団 2,805円
下水道料金
(20m3/月)
越谷市 2,574円
都市公園数
112
図書館数
1
子育て関連の独自の取り組み
こしがや「プラス保育」幼稚園事業(保育施設希望者にやさしい長時間預かり保育を行う私立幼稚園と認定こども園[教育部分]をこしがや「プラス保育」幼稚園と認定。「プラス保育枠」[保育所等の条件を満たす就労・就学等の方が利用できる。園ごとに定員あり]として利用する場合、8時~18時の預かり保育を原則無料で行う)。
乳幼児医療費助成
(通院)
(通院)
対象年齢: 18歳3月末まで
自己負担: 自己負担なし
所得制限: 所得制限なし
乳幼児医療費助成
(入院)
(入院)
対象年齢: 18歳3月末まで
自己負担: 自己負担なし
所得制限: 所得制限なし
出産祝い
なし
一般病院総数
12所
公立保育所数
18所
0歳児保育を実施している公立保育所
14所
私立保育所数
21所
0歳児保育を実施している私立保育所
19所
公立幼稚園数(国立を含む)
0園
私立幼稚園数
19園
小学校数
29校
中学校数
16校
※調査後の制度改変、数値変更等により実際と異なる場合があります。最新情報は各市区役所へお問合せください。
この物件の周辺駅から探す
この物件にお問い合わせする













