に物件情報が更新されました
新着
即入居可
保土ヶ谷公園アーバンコンフォートの賃貸マンション【2階/213号室】
11.5万円
(管理費 5,000円)
敷金
1ヶ月
礼金
0円
種別
マンション
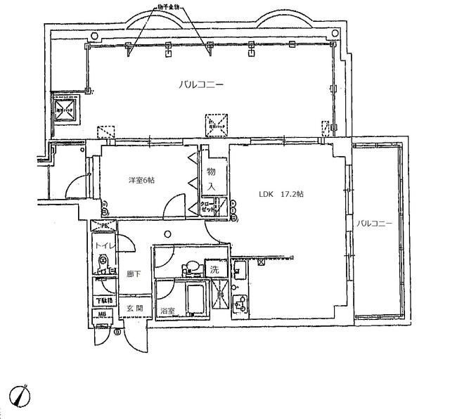
間取り
1LDK
広さ
60.16m2
築年数
築34年
階数
2階 / 5階建
住所
神奈川県横浜市保土ケ谷区桜ケ丘2丁目
交通
相鉄本線 星川駅 徒歩12分 (0.96km)
この物件について
共用部には宅配ボックスが付いているため、対面で荷物を受け取る必要がありません。洗面化粧台を採用しているので、歯ブラシやドライヤーなどをまとめて収納できます。住人以外が住居エリアに侵入しにくいため安全性が上がるオートロック機能を備えています。駐輪場付きのマンションです。横浜市保土ケ谷区エリアの相鉄本線星川付近で不動産をお探しの方。きっとあなた好みのお部屋が見つかります。お気軽にご連絡ください。
この物件への
お問い合わせはこちら!
お問い合わせはこちら!
無料
保土ヶ谷公園アーバンコンフォート 213号室
11.5万円 (管理費 5,000円)
- 敷1ヶ月
- 礼0円
1LDK / 60.16m2 / 2階(5階建)
部屋の特徴
バス・トイレ別
2階以上
駐車場あり
室内洗濯機置場
エアコン付き
ペット相談可
オートロック
洗面所独立
バス・トイレ
バス・トイレ別、浴室、シャワー、追い焚き、温水洗浄便座、トイレ
キッチン
室内設備
エアコン、オートロック、バルコニー、洗面化粧台、洗面所独立、都市ガス、照明、洗髪洗面化粧台、室内洗濯機置場、洗面台
部屋の特徴
角部屋、ルーフバルコニー、2面採光
共用部
公営水道、駐輪場、エレベーター、バイク置場、宅配ボックス
建物の特徴
耐火構造
駐車場
有 月23,100円(税込)
入居条件
礼金0、事務所利用可、普通賃貸借契約 (契約期間:24ヶ月)、保証会社利用可
その他の特徴
SOHO向き
空室確認や見学したいなどお気軽にお問い合わせください!
この物件への
お問い合わせはこちら!
お問い合わせはこちら!
無料
保土ヶ谷公園アーバンコンフォート 213号室
11.5万円 (管理費 5,000円)
- 敷1ヶ月
- 礼0円
1LDK / 60.16m2 / 2階(5階建)
基本情報
賃料
115,000円
5,000円
1ヶ月
0円
0円
115,000円
間取り / 専有面積
1LDK / 60.16m2
間取り詳細
洋6, LDK17.2
種別 / 構造
マンション / 鉄筋コンクリート
築年 / 築年月
築34年 / 1991年6月
所在階 / 階建
2階 / 5階建
駐車場
有 月23,100円(税込)
向き
北
住所
神奈川県横浜市保土ケ谷区桜ケ丘2丁目
交通
相鉄本線 星川駅 徒歩12分 (0.96km)
周辺の環境
500m圏内の施設
1000m圏内の施設
※ 周辺環境は直線距離で表示しています。大東建託パートナーズ株式会社が地図情報の提供事業者から提供を受けた情報を、いい部屋ネット独自の方法で抽出し提供しており、物件に紐づくものではありません。※ 移転や閉鎖等により情報が最新ではない場合があります。周辺環境の情報を利用される際は、ご利用前に各施設に直接お問い合わせください。
詳しい周辺環境は地図でチェック!
駅やお店など周辺環境を地図でチェック!
この物件への
お問い合わせはこちら!
お問い合わせはこちら!
無料
保土ヶ谷公園アーバンコンフォート 213号室
11.5万円 (管理費 5,000円)
- 敷1ヶ月
- 礼0円
1LDK / 60.16m2 / 2階(5階建)
契約条件など
取引態様
仲介
入居可能日
即入居可
保険
要
特記事項
・保証人代行:必須 保証会社:その他 賃料の50%、更新料年1万円、引落手数料300円+税
・バイク置場空有1650円 駐輪場空有
備考
「保土ヶ谷公園アーバンコンフォート」のここがイチオシ。荷物を注文する時に時間を気にしなくてよくなる宅配ボックスを共用部に備え付けております。駐車可能スペースがあるので遠くへの駐車が不要です。横浜市保土ケ谷区エリアで新生活を始めるなら、当社にお任せ下さい!新生活を快適にスタートできるよう、しっかりとサポートいたします。また、ご要望やご不明な点などございましたら、お気軽に当社へご連絡下さい。 ※図面と現状が異なる場合は現状を優先致します。
情報更新日
-
次回情報更新日
情報更新日より15日以内
店舗情報

会社名
株式会社いい部屋デポ
営業時間 / 定休日
10:00~18:00/水曜日
免許番号
神奈川県知事(1)第31973号
所属団体
(公社)全日本不動産協会 / (公社)不動産保証協会 / (公社)首都圏不動産公正取引協議会
空室確認や見学したいなどお気軽にお問い合わせください!
照会No.: 4450584
物件ライブラリー:
保土ヶ谷公園アーバンコンフォート※実際の連絡・案内・契約等については、各地域の協力仲介会社での対応となる場合がございますのでご了承の上お問合せください。(協力会社一覧はこちら)
※成約の際は、当社・協力仲介会社のいずれの場合でも仲介手数料が必要となります。
こちらの物件を見ている方におすすめの物件
11.9万円(管理費 9,000円)
敷
2ヶ月礼
1ヶ月2LDK / 56.43m2 / 築25年
3階 / 7階建
神奈川県横浜市保土ケ谷区鎌谷町
新 着
10.9万円(管理費 9,000円)
敷
0円礼
0円1LDK / 57.78m2 / 築32年
4階 / 5階建
神奈川県横浜市磯子区滝頭1丁目
敷金礼金ゼロ
12.0万円(管理費 4,000円)
敷
1ヶ月礼
0円2LDK / 59.94m2 / 築33年
3階 / 4階建
神奈川県横浜市戸塚区前田町
カード決済可
ネット無料
12.7万円(管理費 10,000円)
敷
1ヶ月礼
1ヶ月1SLDK / 62.54m2 / 築21年
6階 / 7階建・地下1階
神奈川県横浜市戸塚区品濃町
13.0万円(管理費 5,000円)
敷
0円礼
0円2LDK / 60.45m2 / 築32年
2階 / 3階建
神奈川県横浜市港南区港南1丁目
敷金礼金ゼロ
12.0万円(管理費 7,000円)
敷
0円礼
0円2DK / 59.98m2 / 築25年
4階 / 5階建
神奈川県横浜市磯子区森4丁目
敷金礼金ゼロ
ネット無料
本日新着
10.8万円(管理費 6,000円)
敷
1ヶ月礼
1ヶ月2LDK / 59.93m2 / 築37年
4階(402号室) / 7階建・地下1階
神奈川県横浜市中区若葉町2丁目
即入居可
本日新着
9.3万円(管理費 2,000円)
敷
1ヶ月礼
0円2LDK / 58.25m2 / 築40年
2階(203号室) / 4階建
神奈川県横浜市南区六ツ川1丁目
即入居可
カード決済可
9.3万円(管理費 5,000円)
敷
1ヶ月礼
1ヶ月2DK / 56.16m2 / 築37年
3階 / 4階建
神奈川県横浜市神奈川区片倉4丁目
カード決済可
12.7万円(管理費 3,000円)
敷
1ヶ月礼
0円2LDK / 56.3m2 / 築35年
2階(C) / 2階建
神奈川県横浜市鶴見区岸谷4丁目
即入居可
神奈川県横浜市の地域情報
市区名称
横浜市
市区名称 ふりがな(英語)
よこはまし (yokohama)
市役所 住所
横浜市中区本町6-50-10
市役所 電話番号
045-671-2121
公式ホームページURL
プロフィール・沿革
横浜市は、神奈川県の東端に位置し、東は東京湾、北は川崎市、西は町田市・大和市・藤沢市、南は鎌倉市・逗子市・横須賀市に接しています。横浜市の中心部から東京都心部までは、約30kmです。国を代表する国際貿易港である横浜港を基盤として、首都圏の中核都市としての役割を担っています。総面積は、約435k㎡で、これは東京23区の約7割にあたります。
主な行事
横浜中華街・春節 ヨコハマ映画祭 よこはまシティウォーク よこはま花と緑のスプリングフェア ハマフェス 横浜開港祭 横浜スパークリングトワイライト みなとみらい大盆踊り お三の宮秋祭り よこはま国際フェスタ 金刀比羅大鷲神社・酉の市 クリスマスマーケットin横浜赤レンガ倉庫
特産・名産物
シューマイ 浜なし 小松菜
人口総数
3,752,969人
ガス料金
(22m3/月)
東京瓦斯株式会社(東京地区等) 3,926円
水道料金
(口径22㎜:20m3/月)
横浜市 3,017円
下水道料金
(20m3/月)
横浜市 2,035円
都市公園数
2,728
図書館数
18
子育て関連の独自の取り組み
横浜市私立幼稚園等預かり保育事業(横浜市が定めた基準(実施日、時間、職員配置等)を満たし、横浜市の認定を受けた幼稚園・認定こども園が実施する事業。市内在住の園児の保護者が就労や病気等で、園の正規教育時間の前後に家庭で保育ができない場合に、利用可能。3歳児~5歳児は無料、満3歳児は(a)私学助成を受ける幼稚園の場合、月額9,000円、(b)新制度に移行した園の場合、0円~9,000円)。
乳幼児医療費助成
(通院)
(通院)
対象年齢: 中学校卒業まで
自己負担: 自己負担なし
所得制限: 所得制限なし
乳幼児医療費助成
(入院)
(入院)
対象年齢: 中学校卒業まで
自己負担: 自己負担なし
所得制限: 所得制限なし
出産祝い
あり
出生祝いとして、申込み者に記念の苗木を贈呈。
一般病院総数
113所
公立保育所数
56所
0歳児保育を実施している公立保育所
41所
私立保育所数
813所
0歳児保育を実施している私立保育所
716所
公立幼稚園数(国立を含む)
0園
私立幼稚園数
233園
小学校数
351校
中学校数
179校
※調査後の制度改変、数値変更等により実際と異なる場合があります。最新情報は各市区役所へお問合せください。
この物件の周辺駅から探す
この物件にお問い合わせする















